Elected Officials
Courts
Departments
Initiatives
Open Government
About
Login / Register
Home
/
Property & Tax Records
/
Property Records
/
Property & Tax Search
/
Parcel Profile
/
Print View
Search for Another Parcel
Parcel Profile
Historical Card
Sketches
Photos
Tax Map
Taxes
Print View
Print This Page
Address: 119 EUCLID AVE
Parcel: 14011024012300
Parcel Profile
Address
119 | EUCLID | AVE
Street Status
PAVED | SIDEWALK
School District
CITY OF ERIE SCHOOL
Acreage
0.1175
Classification
R
Land Use Code
SINGLE FAMILY
Legal Description
119 EUCLID AVE 40 X 128
Square Feet
1128
Topo
LEVEL
Utility
ALL PUBLIC
Zoning
Please contact your municipal zoning officer
Deed Book
2019
Deed Page
014214
2025 Tax Values
Land Value / Taxable
13,300 / 13,300.00
Building Value / Taxable
63,550 / 63,550.00
Total Value / Taxable
76,850 / 76,850.00
Clean & Green
Inactive
Homestead Status
Inactive
Farmstead Status
Inactive
Lerta Amount
0
Lerta Expiration Year
0
Residential Data
Card 1
Style
CAPE
Basement
FULL
Year Built
1949
Exterior Wall
ALUMINUM/VINYL
Total Living Area
1128
Full Baths
1
Half Baths
0
Fuel Type
GAS
Heating
CENTRAL
Heating System
FORCED AIR
Stories
1.0
Total Bedrooms
3
Total Family Rooms
0
Total Rooms
5
Fireplaces
0
Other Buildings & Yards
Description
Built
Width
Length
Area
FRAME OR CB DETACHED GARAGE
1962
14
20
280
Sales History
Sale Date
Type
Price
Book / Page
Other Info
7/23/2019
LAND & BUILDING
90000
2019 / 014214
DEED
10/20/2016
LAND & BUILDING
0
2016 / 022822
QUIT CLAIM DEED
5/14/2013
LAND & BUILDING
82000
2013 / 011840
SPECIAL WARRANTY DEED
11/27/1991
42000
0186 / 1788
2/25/1991
0
0151 / 0965
4/3/1990
0
0117 / 1349
9/9/1949
0
0547 / 0077
8/6/1948
0
0529 / 0123
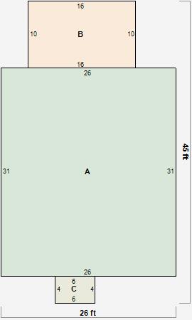
Parcel Sketches
Residential Card 1
A
MAIN
806 square feet
B
WDDCK WOOD DECKS
160 square feet
C
MA STOOP/TERR MAS STOOP
24 square feet
Parcel Images