Elected Officials
Courts
Departments
Initiatives
Open Government
About
Login / Register
Home
/
Property & Tax Records
/
Property Records
/
Property & Tax Search
/
Parcel Profile
/
Print View
Search for Another Parcel
Parcel Profile
Historical Card
Sketches
Photos
Tax Map
Taxes
Print View
Print This Page
Address: 156 EUCLID AVE
Parcel: 14011024020200
Parcel Profile
Address
156 | EUCLID | AVE
Street Status
PAVED | SIDEWALK
School District
CITY OF ERIE SCHOOL
Acreage
0.1240
Classification
R
Land Use Code
SINGLE FAMILY
Legal Description
156 EUCLID AVE 40 X 135
Square Feet
1246
Topo
LEVEL
Utility
ALL PUBLIC
Zoning
Please contact your municipal zoning officer
Deed Book
2020
Deed Page
010359
2026 Tax Values
Land Value / Taxable
13,400 / 13,400.00
Building Value / Taxable
57,500 / 57,500.00
Total Value / Taxable
70,900 / 70,900.00
Clean & Green
Inactive
Homestead Status
Inactive
Farmstead Status
Inactive
Lerta Amount
0
Lerta Expiration Year
0
Residential Data
Card 1
Style
BUNGALOW
Basement
FULL
Year Built
1931
Exterior Wall
FRAME
Total Living Area
1246
Full Baths
1
Half Baths
0
Fuel Type
GAS
Heating
CENTRAL
Heating System
FORCED AIR
Stories
1.0
Total Bedrooms
3
Total Family Rooms
0
Total Rooms
5
Fireplaces
1
Other Buildings & Yards
Description
Built
Width
Length
Area
FRAME OR CB DETACHED GARAGE
1931
18
12
216
CANOPY
1950
11
19
209
Sales History
Sale Date
Type
Price
Book / Page
Other Info
6/11/2020
LAND & BUILDING
20000
2020 / 010359
SPECIAL WARRANTY DEED
12/15/1953
0
0667 / 0073
2/15/1952
0
0616 / 0445
7/15/1941
0
0405 / 0216
4/29/1940
0
0389 / 0336
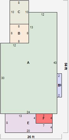
Parcel Sketches
Residential Card 1
A
MAIN
876 square feet
B
EFP ENCL FRAME PORCH
64 square feet
C
MA_PT CONC/MAS PATIO
80 square feet
D
UNFIN BSMT BASEMENT UNFINISHED FRBAY FRAME BAY
20 square feet
E
OFP OPEN FRAME PORCH
132 square feet
F
EFP ENCL FRAME PORCH
28 square feet
Parcel Images
Please note:
this tab is for informational purposes only and may not show all delinquencies, see the Taxes tab for more accurate delinquent taxes due.