Elected Officials
Courts
Departments
Initiatives
Open Government
About
Login / Register
Home
/
Property & Tax Records
/
Property Records
/
Property & Tax Search
/
Parcel Profile
/
Print View
Search for Another Parcel
Parcel Profile
Historical Card
Sketches
Photos
Tax Map
Taxes
Print View
Print This Page
Address: 1970 LAKESIDE DR
Parcel: 14011025010600
Parcel Profile
Address
1970 | LAKESIDE | DR
Street Status
PAVED | SIDEWALK
School District
CITY OF ERIE SCHOOL
Acreage
0.6706
Classification
R
Land Use Code
SINGLE FAMILY
Legal Description
1970 LAKESIDE DR 29,210 SQFT IRR
Square Feet
2084
Topo
LEVEL
Utility
ALL PUBLIC
Zoning
Please contact your municipal zoning officer
Deed Book
1111
Deed Page
0233
2026 Tax Values
Land Value / Taxable
140,200 / 140,200.00
Building Value / Taxable
109,800 / 109,800.00
Total Value / Taxable
250,000 / 250,000.00
Clean & Green
Inactive
Homestead Status
Inactive
Farmstead Status
Inactive
Lerta Amount
0
Lerta Expiration Year
0
Residential Data
Card 1
Style
TUDOR
Basement
FULL
Year Built
1926
Exterior Wall
BRICK
Total Living Area
2084
Full Baths
2
Half Baths
1
Fuel Type
GAS
Heating
CENTRAL
Heating System
HOT WATER
Stories
2.0
Total Bedrooms
4
Total Family Rooms
1
Total Rooms
8
Fireplaces
1
Other Buildings & Yards
No OBY Data Found
Sales History
Sale Date
Type
Price
Book / Page
Other Info
2/27/2004
LAND & BUILDING
0
1111 / 0233
DEED
6/27/1979
0
1354 / 0040
7/23/1925
0
0297 / 0444
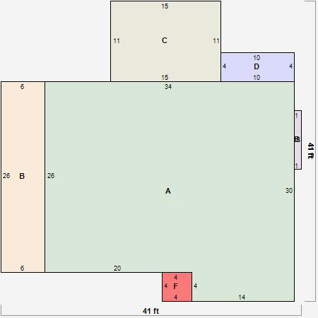
Parcel Sketches
Residential Card 1
A
MAIN
940 square feet
B
OMP OPEN MASONRY PORCH 1SMAS MASONRY AT UN ATTIC-UNFINISHED
156 square feet
C
MA_PT CONC/MAS PATIO
165 square feet
D
1SMAS MASONRY
40 square feet
E
FRBAY FRAME BAY
8 square feet
F
EMP ENCL MASONRY PORCH
16 square feet
Parcel Images
Please note:
this tab is for informational purposes only and may not show all delinquencies, see the Taxes tab for more accurate delinquent taxes due.