Elected Officials
Courts
Departments
Initiatives
Open Government
About
Login / Register
Home
/
Property & Tax Records
/
Property Records
/
Property & Tax Search
/
Parcel Profile
/
Print View
Search for Another Parcel
Parcel Profile
Historical Card
Sketches
Photos
Tax Map
Taxes
Print View
Print This Page
Address: 203 EAGLE POINT BLVD
Parcel: 14011027021600
Parcel Profile
Address
203 | EAGLE POINT | BLVD
Street Status
PAVED | SIDEWALK
School District
CITY OF ERIE SCHOOL
Acreage
0.3030
Classification
R
Land Use Code
SINGLE FAMILY
Legal Description
203 EAGLE POINT BLVD LOTS 121 & 122 80 X 165
Square Feet
1152
Topo
LEVEL
Utility
ALL PUBLIC
Zoning
Please contact your municipal zoning officer
Deed Book
2012
Deed Page
031704
2026 Tax Values
Land Value / Taxable
15,600 / 15,600.00
Building Value / Taxable
36,120 / 36,120.00
Total Value / Taxable
51,720 / 51,720.00
Clean & Green
Inactive
Homestead Status
Inactive
Farmstead Status
Inactive
Lerta Amount
0
Lerta Expiration Year
0
Residential Data
Card 1
Style
OLD STYLE
Basement
FULL
Year Built
1927
Exterior Wall
COMPOSITION
Total Living Area
1152
Full Baths
1
Half Baths
0
Fuel Type
GAS
Heating
CENTRAL
Heating System
FORCED AIR
Stories
2.0
Total Bedrooms
3
Total Family Rooms
0
Total Rooms
6
Fireplaces
0
Other Buildings & Yards
Description
Built
Width
Length
Area
FRAME OR CB DETACHED GARAGE
1927
18
20
360
Sales History
Sale Date
Type
Price
Book / Page
Other Info
11/20/2012
LAND & BUILDING
0
2012 / 031704
QUIT CLAIM DEED
5/7/1940
0
0401 / 0004
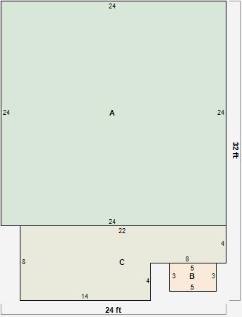
Parcel Sketches
Residential Card 1
A
MAIN
576 square feet
B
MA STOOP/TERR MAS STOOP
15 square feet
C
UNFIN BSMT BASEMENT UNFINISHED EFP ENCL FRAME PORCH
144 square feet
Parcel Images
Please note:
this tab is for informational purposes only and may not show all delinquencies, see the Taxes tab for more accurate delinquent taxes due.