Elected Officials
Courts
Departments
Initiatives
Open Government
About
Login / Register
Home
/
Property & Tax Records
/
Property Records
/
Property & Tax Search
/
Parcel Profile
/
Print View
Search for Another Parcel
Parcel Profile
Historical Card
Sketches
Photos
Tax Map
Taxes
Print View
Print This Page
Address: 129 CHAUTAUQUA BLVD
Parcel: 14011028011900
Parcel Profile
Address
129 | CHAUTAUQUA | BLVD
Street Status
PAVED | SIDEWALK
School District
CITY OF ERIE SCHOOL
Acreage
0.1433
Classification
R
Land Use Code
SINGLE FAMILY
Legal Description
129 CHAUTAUQUA BLVD 40X156.14
Square Feet
804
Topo
LEVEL
Utility
ALL PUBLIC
Zoning
Please contact your municipal zoning officer
Deed Book
2020
Deed Page
006845
2026 Tax Values
Land Value / Taxable
13,600 / 13,600.00
Building Value / Taxable
49,200 / 49,200.00
Total Value / Taxable
62,800 / 62,800.00
Clean & Green
Inactive
Homestead Status
Inactive
Farmstead Status
Inactive
Lerta Amount
0
Lerta Expiration Year
0
Residential Data
Card 1
Style
BUNGALOW
Basement
FULL
Year Built
1923
Exterior Wall
ALUMINUM/VINYL
Total Living Area
804
Full Baths
1
Half Baths
0
Fuel Type
GAS
Heating
CENTRAL A/C
Heating System
FORCED AIR
Stories
1.0
Total Bedrooms
2
Total Family Rooms
0
Total Rooms
5
Fireplaces
0
Other Buildings & Yards
Description
Built
Width
Length
Area
FRAME OR CB DETACHED GARAGE
1923
10
20
200
WOOD DECK
1985
8
24
192
Sales History
Sale Date
Type
Price
Book / Page
Other Info
4/17/2020
LAND & BUILDING
88500
2020 / 006845
DEED
7/16/2008
LAND & BUILDING
60000
1509 / 0992
DEED
2/21/1995
0
0373 / 1312
4/25/1944
0
0441 / 0399
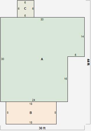
Parcel Sketches
Residential Card 1
A
MAIN
804 square feet
B
EFP ENCL FRAME PORCH
144 square feet
C
EFP ENCL FRAME PORCH
36 square feet
Parcel Images
Please note:
this tab is for informational purposes only and may not show all delinquencies, see the Taxes tab for more accurate delinquent taxes due.