Elected Officials
Courts
Departments
Initiatives
Open Government
About
Login / Register
Home
/
Property & Tax Records
/
Property Records
/
Property & Tax Search
/
Parcel Profile
/
Print View
Search for Another Parcel
Parcel Profile
Historical Card
Sketches
Photos
Tax Map
Taxes
Print View
Print This Page
Address: 1006 GERMAN ST
Parcel: 15020012020700
Parcel Profile
Address
1006 | GERMAN | ST
Street Status
PAVED
School District
CITY OF ERIE SCHOOL
Acreage
0.0421
Classification
R
Land Use Code
SINGLE FAMILY
Legal Description
1006 GERMAN ST 34X54
Square Feet
1377
Topo
LEVEL
Utility
ALL PUBLIC
Zoning
Please contact your municipal zoning officer
Deed Book
1233
Deed Page
0863
2026 Tax Values
Land Value / Taxable
5,000 / 5,000.00
Building Value / Taxable
15,000 / 15,000.00
Total Value / Taxable
20,000 / 20,000.00
Clean & Green
Inactive
Homestead Status
Inactive
Farmstead Status
Inactive
Lerta Amount
0
Lerta Expiration Year
0
Residential Data
Card 1
Style
OLD STYLE
Basement
FULL
Year Built
1897
Exterior Wall
COMPOSITION
Total Living Area
1377
Full Baths
1
Half Baths
0
Fuel Type
GAS
Heating
CENTRAL
Heating System
FORCED AIR
Stories
2.0
Total Bedrooms
2
Total Family Rooms
1
Total Rooms
6
Fireplaces
0
Other Buildings & Yards
No OBY Data Found
Sales History
Sale Date
Type
Price
Book / Page
Other Info
5/12/2005
LAND & BUILDING
0
1233 / 0863
DEED
1/17/1996
0
0420 / 2171
11/14/1995
0
0412 / 2215
10/15/1965
0
0927 / 0146
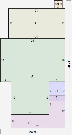
Parcel Sketches
Residential Card 1
A
MAIN
552 square feet
B
MA STOOP/TERR MAS STOOP
9 square feet
C
UNFIN BSMT BASEMENT UNFINISHED 1S FR ONE STORY FRAME
231 square feet
D
1S FR ONE STORY FRAME
42 square feet
E
OFP OPEN FRAME PORCH
142 square feet
Parcel Images
Please note:
this tab is for informational purposes only and may not show all delinquencies, see the Taxes tab for more accurate delinquent taxes due.