Elected Officials
Courts
Departments
Initiatives
Open Government
About
Login / Register
Home
/
Property & Tax Records
/
Property Records
/
Property & Tax Search
/
Parcel Profile
/
Print View
Search for Another Parcel
Parcel Profile
Historical Card
Sketches
Photos
Tax Map
Taxes
Print View
Print This Page
Address: 817 19 GERMAN ST
Parcel: 15020016022900
Parcel Profile
Address
817 | 19 | GERMAN | ST
Street Status
PAVED
School District
CITY OF ERIE SCHOOL
Acreage
0.1136
Classification
R
Land Use Code
TWO FAMILY
Legal Description
817 19 GERMAN ST 40 X 123.75
Square Feet
3272
Topo
LEVEL
Utility
ALL PUBLIC
Zoning
Please contact your municipal zoning officer
Deed Book
2020
Deed Page
020144
2025 Tax Values
Land Value / Taxable
6,200 / 6,200.00
Building Value / Taxable
17,050 / 17,050.00
Total Value / Taxable
23,250 / 23,250.00
Clean & Green
Inactive
Homestead Status
Inactive
Farmstead Status
Inactive
Lerta Amount
0
Lerta Expiration Year
0
Residential Data
Card 1
Style
OLD STYLE
Basement
FULL
Year Built
1892
Exterior Wall
ALUMINUM/VINYL
Total Living Area
3272
Full Baths
2
Half Baths
1
Fuel Type
GAS
Heating
CENTRAL
Heating System
FORCED AIR
Stories
2.0
Total Bedrooms
6
Total Family Rooms
0
Total Rooms
12
Fireplaces
0
Other Buildings & Yards
No OBY Data Found
Sales History
Sale Date
Type
Price
Book / Page
Other Info
9/30/2020
LAND & BUILDING
17500
2020 / 020144
SPECIAL WARRANTY DEED
3/11/2014
LAND & BUILDING
0
2014 / 004345
QUIT CLAIM DEED
6/20/2013
LAND & BUILDING
0
2013 / 015724
SPECIAL WARRANTY DEED
7/17/2012
LAND & BUILDING
25000
2012 / 019061
SPECIAL WARRANTY DEED
4/19/1974
0
1118 / 0209
3/9/1971
0
1039 / 0180
8/31/1946
0
0482 / 0539
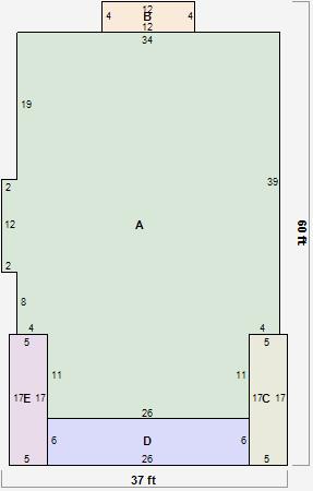
Parcel Sketches
Residential Card 1
A
MAIN
1636 square feet
B
EFP ENCL FRAME PORCH
48 square feet
C
OFP OPEN FRAME PORCH
85 square feet
D
OFP OPEN FRAME PORCH
156 square feet
E
OFP OPEN FRAME PORCH
85 square feet
Parcel Images