Address: 823 GERMAN ST   Parcel: 15020016023000
Parcel Profile
Address823 | GERMAN | ST
Street StatusPAVED
School DistrictCITY OF ERIE SCHOOL
Acreage0.0758
ClassificationR
Land Use CodeSINGLE FAMILY
Legal Description823 GERMAN ST 40 X 82.5
Square Feet1856
TopoLEVEL
UtilityALL PUBLIC
ZoningPlease contact your municipal zoning officer
Deed Book0652
Deed Page1284
2025 Tax Values
Land Value / Taxable5,600 / 5,600.00
Building Value / Taxable30,300 / 30,300.00
Total Value / Taxable35,900 / 35,900.00
Clean & GreenInactive
Homestead StatusInactive
Farmstead StatusInactive
Lerta Amount0
Lerta Expiration Year0
Residential Data
Card 1
     StyleOLD STYLE
     BasementFULL
     Year Built1902
     Exterior WallALUMINUM/VINYL
     Total Living Area1856
     Full Baths1
     Half Baths1
     Fuel TypeGAS
     HeatingCENTRAL
     Heating SystemFORCED AIR
     Stories2.0
     Total Bedrooms3
     Total Family Rooms0
     Total Rooms7
     Fireplaces0
Other Buildings & Yards
DescriptionBuiltWidthLengthArea
 FRAME OR CB DETACHED GARAGE 1902 10 18 180
Sales History
Sale DateTypePriceBook / PageOther Info
7/29/1999LAND & BUILDING160000652 / 1284 
6/17/1999 00643 / 1591 
4/14/1989 00083 / 0059 
8/24/1979 01361 / 0373 
8/24/1979 01596 / 0063 
2/15/1944 00441 / 0180 



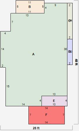
Parcel Sketches

Residential Card 1

Residential Card 1
AMAIN874 square feet
B OFP OPEN FRAME PORCH 55 square feet
C FROVR FRAME OVERHANG AT UN ATTIC-UNFINISHED28 square feet
DUNFIN BSMT BASEMENT UNFINISHED 1S FR ONE STORY FRAME 1S FR ONE STORY FRAME AT UN ATTIC-UNFINISHED20 square feet
EUNFIN BSMT BASEMENT UNFINISHED OFP OPEN FRAME PORCH 1S FR ONE STORY FRAME AT UN ATTIC-UNFINISHED40 square feet
F OFP OPEN FRAME PORCH 98 square feet

Parcel Images

parcel photo