Elected Officials
Courts
Departments
Initiatives
Open Government
About
Login / Register
Home
/
Property & Tax Records
/
Property Records
/
Property & Tax Search
/
Parcel Profile
/
Print View
Search for Another Parcel
Parcel Profile
Historical Card
Sketches
Photos
Tax Map
Taxes
Print View
Print This Page
Address: 352 E 9 ST
Parcel: 15020016024300
Parcel Profile
Address
352 | E | 9 | ST
Street Status
PAVED
School District
CITY OF ERIE SCHOOL
Acreage
0.1278
Classification
R
Land Use Code
TWO FAMILY
Legal Description
352 E 9 ST 41.25X135
Square Feet
2723
Topo
LEVEL
Utility
ALL PUBLIC
Zoning
Please contact your municipal zoning officer
Deed Book
0485
Deed Page
1183
2026 Tax Values
Land Value / Taxable
6,300 / 6,300.00
Building Value / Taxable
38,100 / 38,100.00
Total Value / Taxable
44,400 / 44,400.00
Clean & Green
Inactive
Homestead Status
Inactive
Farmstead Status
Inactive
Lerta Amount
0
Lerta Expiration Year
0
Residential Data
Card 1
Style
OLD STYLE
Basement
FULL
Year Built
1845
Exterior Wall
ALUMINUM/VINYL
Total Living Area
2723
Full Baths
2
Half Baths
0
Fuel Type
GAS
Heating
CENTRAL
Heating System
FORCED AIR
Stories
2.0
Total Bedrooms
4
Total Family Rooms
0
Total Rooms
10
Fireplaces
0
Other Buildings & Yards
No OBY Data Found
Sales History
Sale Date
Type
Price
Book / Page
Other Info
2/27/1997
0
0485 / 1183
9/17/1980
0
1398 / 0187
1/18/1957
0
0747 / 0262
10/3/1941
0
0414 / 0335
5/14/1936
0
0370 / 0117
Parcel Sketches
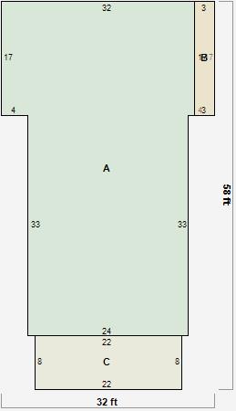
Residential Card 1
A
MAIN
1336 square feet
B
1S FR ONE STORY FRAME AT UN ATTIC-UNFINISHED
51 square feet
C
OFP OPEN FRAME PORCH EFP ENCL FRAME PORCH
176 square feet
Parcel Images
Please note:
this tab is for informational purposes only and may not show all delinquencies, see the Taxes tab for more accurate delinquent taxes due.