Elected Officials
Courts
Departments
Initiatives
Open Government
About
Login / Register
Home
/
Property & Tax Records
/
Property Records
/
Property & Tax Search
/
Parcel Profile
/
Print View
Search for Another Parcel
Parcel Profile
Historical Card
Sketches
Photos
Tax Map
Taxes
Print View
Print This Page
Address: 1115 GERMAN ST
Parcel: 15020017013000
Parcel Profile
Address
1115 | GERMAN | ST
Street Status
PAVED | SIDEWALK
School District
CITY OF ERIE SCHOOL
Acreage
0.0777
Classification
R
Land Use Code
TWO FAMILY
Legal Description
1115 GERMAN ST 41 X 82.5
Square Feet
1980
Topo
LEVEL
Utility
ALL PUBLIC
Zoning
Please contact your municipal zoning officer
Deed Book
0675
Deed Page
0640
2025 Tax Values
Land Value / Taxable
5,600 / 5,600.00
Building Value / Taxable
31,500 / 31,500.00
Total Value / Taxable
37,100 / 37,100.00
Clean & Green
Inactive
Homestead Status
Inactive
Farmstead Status
Inactive
Lerta Amount
0.00
Lerta Expiration Year
2015
Residential Data
Card 1
Style
ROW
Basement
FULL
Year Built
1902
Exterior Wall
COMPOSITION
Total Living Area
1980
Full Baths
2
Half Baths
0
Fuel Type
GAS
Heating
CENTRAL
Heating System
HOT WATER
Stories
2.0
Total Bedrooms
4
Total Family Rooms
0
Total Rooms
10
Fireplaces
0
Other Buildings & Yards
Description
Built
Width
Length
Area
FRAME OR CB DETACHED GARAGE
1902
14
19
266
Sales History
Sale Date
Type
Price
Book / Page
Other Info
11/24/1999
LAND & BUILDING
8000
0675 / 0640
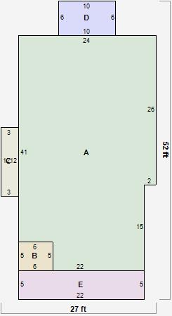
Parcel Sketches
Residential Card 1
A
MAIN
954 square feet
B
OFP OPEN FRAME PORCH WDDCK WOOD DECKS
30 square feet
C
UNFIN BSMT BASEMENT UNFINISHED FRBAY FRAME BAY FRBAY FRAME BAY
36 square feet
D
OFP OPEN FRAME PORCH
60 square feet
E
WDDCK WOOD DECKS
110 square feet
Parcel Images