Elected Officials
Courts
Departments
Initiatives
Open Government
About
Login / Register
Home
/
Property & Tax Records
/
Property Records
/
Property & Tax Search
/
Parcel Profile
/
Print View
Search for Another Parcel
Parcel Profile
Historical Card
Sketches
Photos
Tax Map
Taxes
Print View
Print This Page
Address: 337 39 E 10 ST
Parcel: 15020017021500
Parcel Profile
Address
337 | 39 | E | 10 | ST
Street Status
PAVED | SIDEWALK
School District
CITY OF ERIE SCHOOL
Acreage
0.1553
Classification
R
Land Use Code
THREE FAMILY
Legal Description
337 39 E 10 ST 41X165
Square Feet
2748
Topo
LEVEL
Utility
ALL PUBLIC
Zoning
Please contact your municipal zoning officer
Deed Book
2024
Deed Page
015525
2026 Tax Values
Land Value / Taxable
6,500 / 6,500.00
Building Value / Taxable
38,290 / 38,290.00
Total Value / Taxable
44,790 / 44,790.00
Clean & Green
Inactive
Homestead Status
Active
Farmstead Status
Inactive
Lerta Amount
0
Lerta Expiration Year
0
Residential Data
Card 1
Style
OLD STYLE
Basement
FULL
Year Built
1887
Exterior Wall
MASONRY & FRAME
Total Living Area
2748
Full Baths
4
Half Baths
0
Fuel Type
GAS
Heating
CENTRAL
Heating System
FORCED AIR
Stories
2.0
Total Bedrooms
4
Total Family Rooms
0
Total Rooms
10
Fireplaces
0
Other Buildings & Yards
No OBY Data Found
Sales History
Sale Date
Type
Price
Book / Page
Other Info
9/25/2024
LAND & BUILDING
0
2024 / 015525
SPECIAL WARRANTY DEED
11/23/2004
LAND & BUILDING
0
1192 / 0360
DEED
8/23/1947
0
0496 / 0327
12/29/1945
0
0465 / 0001
12/31/1941
0
0410 / 0332
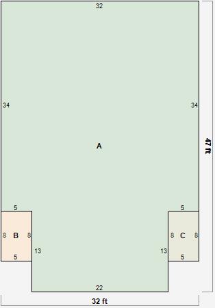
Parcel Sketches
Residential Card 1
A
MAIN
1374 square feet
B
EFP ENCL FRAME PORCH
40 square feet
C
EFP ENCL FRAME PORCH
40 square feet
Parcel Images
Please note:
this tab is for informational purposes only and may not show all delinquencies, see the Taxes tab for more accurate delinquent taxes due.