Elected Officials
Courts
Departments
Initiatives
Open Government
About
Login / Register
Home
/
Property & Tax Records
/
Property Records
/
Property & Tax Search
/
Parcel Profile
/
Print View
Search for Another Parcel
Parcel Profile
Historical Card
Sketches
Photos
Tax Map
Taxes
Print View
Print This Page
Address: 302 E 18 ST
Parcel: 15020020012200
Parcel Profile
Address
302 | E | 18 | ST
Street Status
PAVED
School District
CITY OF ERIE SCHOOL
Acreage
0.0635
Classification
R
Land Use Code
SINGLE FAMILY
Legal Description
302 E 18 ST 41.25 X 67
Square Feet
1896
Topo
LEVEL
Utility
ALL PUBLIC
Zoning
Please contact your municipal zoning officer
Deed Book
1397
Deed Page
0013
2026 Tax Values
Land Value / Taxable
5,400 / 5,400.00
Building Value / Taxable
23,020 / 23,020.00
Total Value / Taxable
28,420 / 28,420.00
Clean & Green
Inactive
Homestead Status
Active
Farmstead Status
Inactive
Lerta Amount
0
Lerta Expiration Year
0
Residential Data
Card 1
Style
OLD STYLE
Basement
FULL
Year Built
1905
Exterior Wall
COMPOSITION
Total Living Area
1896
Full Baths
1
Half Baths
0
Fuel Type
GAS
Heating
CENTRAL
Heating System
FORCED AIR
Stories
2.0
Total Bedrooms
3
Total Family Rooms
1
Total Rooms
10
Fireplaces
0
Other Buildings & Yards
No OBY Data Found
Sales History
Sale Date
Type
Price
Book / Page
Other Info
9/4/1980
0
1397 / 0013
8/19/1980
0
1395 / 0210
3/4/1980
0
1380 / 0210
5/15/1943
0
0436 / 0193
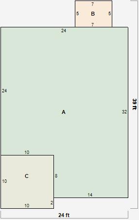
Parcel Sketches
Residential Card 1
A
MAIN
688 square feet
B
EFP ENCL FRAME PORCH
35 square feet
C
EFP ENCL FRAME PORCH
100 square feet
Parcel Images
Please note:
this tab is for informational purposes only and may not show all delinquencies, see the Taxes tab for more accurate delinquent taxes due.