Address: 1608 10 PARADE ST   Parcel: 15020020020400
Parcel Profile
Address1608 | 10 | PARADE | ST
Street StatusPAVED | SIDEWALK
School DistrictCITY OF ERIE SCHOOL
Acreage0.1019
ClassificationC
Land Use CodeOFFICE BLDGS/LABS/LIBRARIES
Legal Description1608 10 PARADE ST 38.6 X 125
Square Feet7085
TopoLEVEL
UtilityALL PUBLIC
ZoningPlease contact your municipal zoning officer
Deed Book2020
Deed Page025827
2025 Tax Values
Land Value / Taxable13,300 / 13,300.00
Building Value / Taxable44,500 / 44,500.00
Total Value / Taxable57,800 / 57,800.00
Clean & GreenInactive
Homestead StatusInactive
Farmstead StatusInactive
Lerta Amount0
Lerta Expiration Year0
Commercial Data
Card 1DOWNTOWN ROW TYPE
 Business Living Area - 7085
 Year Built - 1914
 Improvement Name - NIETHAMER & OWENS
 Value - 111410
Other Buildings & Yards
No OBY Data Found
Sales History
Sale DateTypePriceBook / PageOther Info
12/1/2020LAND & BUILDING02020 / 025827SPECIAL WARRANTY DEED
12/16/1987 00036 / 1346 
2/1/1974 01113 / 0257 
1/2/1963 00881 / 0003 
3/25/1959 00795 / 0053 
7/13/1948 00518 / 0055 
6/24/1943 00436 / 0551 



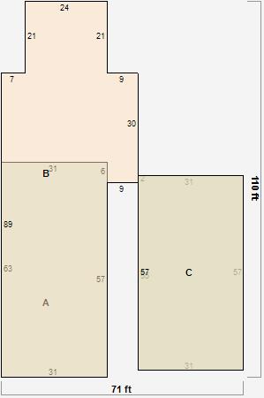
Parcel Sketches

Commercial Card 1

Commercial Card 1
AMAIN3720 square feet
BMAIN5318 square feet
CMAIN1767 square feet

Parcel Images

parcel photo