Elected Officials
Courts
Departments
Initiatives
Open Government
About
Login / Register
Home
/
Property & Tax Records
/
Property Records
/
Property & Tax Search
/
Parcel Profile
/
Print View
Search for Another Parcel
Parcel Profile
Historical Card
Sketches
Photos
Tax Map
Taxes
Print View
Print This Page
Address: 358 E 17TH ST
Parcel: 15020020022400
Parcel Profile
Address
358 | E | 17TH | ST
Street Status
PAVED
School District
CITY OF ERIE SCHOOL
Acreage
0.0427
Classification
R
Land Use Code
SINGLE FAMILY
Legal Description
358 E 17TH ST | 31X60
Square Feet
1376
Topo
LEVEL
Utility
ALL PUBLIC
Zoning
Please contact your municipal zoning officer
Deed Book
1433
Deed Page
0415
2026 Tax Values
Land Value / Taxable
5,000 / 5,000.00
Building Value / Taxable
24,900 / 24,900.00
Total Value / Taxable
29,900 / 29,900.00
Clean & Green
Inactive
Homestead Status
Active
Farmstead Status
Inactive
Lerta Amount
0
Lerta Expiration Year
0
Residential Data
Card 1
Style
OLD STYLE
Basement
FULL
Year Built
1910
Exterior Wall
BRICK
Total Living Area
1376
Full Baths
1
Half Baths
0
Fuel Type
GAS
Heating
CENTRAL
Heating System
FORCED AIR
Stories
2.0
Total Bedrooms
4
Total Family Rooms
1
Total Rooms
7
Fireplaces
0
Other Buildings & Yards
No OBY Data Found
Sales History
Sale Date
Type
Price
Book / Page
Other Info
7/20/2007
LAND & BUILDING
27000
1433 / 0415
DEED
3/8/1993
0
0257 / 1695
8/17/1979
0
1360 / 0276
1/30/1957
0
0753 / 0522
9/16/1943
0
0442 / 0062
2/17/1939
0
0386 / 0050
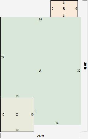
Parcel Sketches
Residential Card 1
A
MAIN
688 square feet
B
MA STOOP/TERR MAS STOOP
40 square feet
C
OFP OPEN FRAME PORCH
100 square feet
Parcel Images
Please note:
this tab is for informational purposes only and may not show all delinquencies, see the Taxes tab for more accurate delinquent taxes due.