Elected Officials
Courts
Departments
Initiatives
Open Government
About
Login / Register
Home
/
Property & Tax Records
/
Property Records
/
Property & Tax Search
/
Parcel Profile
/
Print View
Search for Another Parcel
Parcel Profile
Historical Card
Sketches
Photos
Tax Map
Taxes
Print View
Print This Page
Address: 457 E 9 ST
Parcel: 15020021010700
Parcel Profile
Address
457 | E | 9 | ST
Street Status
PAVED
School District
CITY OF ERIE SCHOOL
Acreage
0.0661
Classification
R
Land Use Code
SINGLE FAMILY
Legal Description
457 E 9 ST 40 X 72
Square Feet
1743
Topo
LEVEL
Utility
ALL PUBLIC
Zoning
Please contact your municipal zoning officer
Deed Book
2024
Deed Page
017695
2026 Tax Values
Land Value / Taxable
5,400 / 5,400.00
Building Value / Taxable
27,670 / 27,670.00
Total Value / Taxable
33,070 / 33,070.00
Clean & Green
Inactive
Homestead Status
Inactive
Farmstead Status
Inactive
Lerta Amount
0
Lerta Expiration Year
0
Residential Data
Card 1
Style
OLD STYLE
Basement
FULL
Year Built
1887
Exterior Wall
ALUMINUM/VINYL
Total Living Area
1743
Full Baths
1
Half Baths
0
Fuel Type
GAS
Heating
CENTRAL
Heating System
FORCED AIR
Stories
1.5
Total Bedrooms
3
Total Family Rooms
0
Total Rooms
6
Fireplaces
0
Other Buildings & Yards
No OBY Data Found
Sales History
Sale Date
Type
Price
Book / Page
Other Info
10/29/2024
LAND & BUILDING
10000
2024 / 017695
SPECIAL WARRANTY DEED
7/3/2024
LAND & BUILDING
4000
2024 / 010233
SPECIAL WARRANTY DEED
4/29/2024
LAND & BUILDING
5102
2024 / 006224
SHERIFF'S DED
7/7/2009
LAND & BUILDING
30000
1574 / 2042
DEED
11/19/2004
LAND & BUILDING
15000
1190 / 2355
DEED
11/21/2000
LAND & BUILDING
12000
739 / 425
1/12/1993
0
0249 / 0154
2/5/1990
0
0112 / 0438
7/27/1984
0
1546 / 0127
11/21/1980
0
1404 / 0597
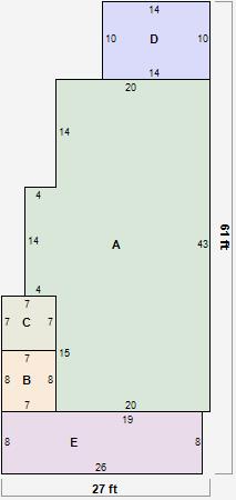
Parcel Sketches
Residential Card 1
A
MAIN
916 square feet
B
OFP OPEN FRAME PORCH
56 square feet
C
EFP ENCL FRAME PORCH
49 square feet
D
1S FR ONE STORY FRAME
140 square feet
E
OFP OPEN FRAME PORCH
208 square feet
Parcel Images
Please note:
this tab is for informational purposes only and may not show all delinquencies, see the Taxes tab for more accurate delinquent taxes due.