Elected Officials
Courts
Departments
Initiatives
Open Government
About
Login / Register
Home
/
Property & Tax Records
/
Property Records
/
Property & Tax Search
/
Parcel Profile
/
Print View
Search for Another Parcel
Parcel Profile
Historical Card
Sketches
Photos
Tax Map
Taxes
Print View
Print This Page
Address: 460 E 12 ST
Parcel: 15020022010000
Parcel Profile
Address
460 | E | 12 | ST
Street Status
PAVED | SIDEWALK
School District
CITY OF ERIE SCHOOL
Acreage
0.0940
Classification
C
Land Use Code
RESTAURANTS, STORES (RETAIL)
Legal Description
460 E 12 ST 47.25 X 90 IRR
Square Feet
2672
Topo
LEVEL
Utility
ALL PUBLIC
Zoning
Please contact your municipal zoning officer
Deed Book
2024
Deed Page
006615
2026 Tax Values
Land Value / Taxable
12,700 / 12,700.00
Building Value / Taxable
38,600 / 38,600.00
Total Value / Taxable
51,300 / 51,300.00
Clean & Green
Inactive
Homestead Status
Inactive
Farmstead Status
Inactive
Lerta Amount
0
Lerta Expiration Year
0
Commercial Data
Card 1
MIXED RES/COMM
Business Living Area - 2672
Year Built - 1882
Improvement Name - SARAH'S MARKET
Value - 38570
Other Buildings & Yards
No OBY Data Found
Sales History
Sale Date
Type
Price
Book / Page
Other Info
5/3/2024
LAND & BUILDING
100000
2024 / 006615
SPECIAL WARRANTY DEED
6/21/2022
LAND & BUILDING
75000
2022 / 013254
SPECIAL WARRANTY DEED
3/6/2020
LAND & BUILDING
20000
2020 / 004408
SPECIAL WARRANTY DEED
10/24/2012
LAND & BUILDING
0
2012 / 029232
SPECIAL WARRANTY DEED
9/14/2005
LAND & BUILDING
0
1269 / 1103
QUIT CLAIM DEED
9/14/2005
LAND & BUILDING
65000
1269 / 1105
WARRANTY/SURVIVORSHIP DEED
11/2/1998
0
0597 / 1141
9/24/1998
0
0589 / 1329
7/12/1996
0
0450 / 0561
8/2/1995
0
0396 / 0249
3/11/1994
0
0323 / 0318
11/29/1993
0
0306 / 0313
8/9/1993
0
0284 / 1711
12/18/1992
0
0195 / 1335
1/29/1982
0
1446 / 0108
1/26/1981
0
1410 / 0446
5/16/1979
0
1348 / 0495
11/14/1975
0
1183 / 0149
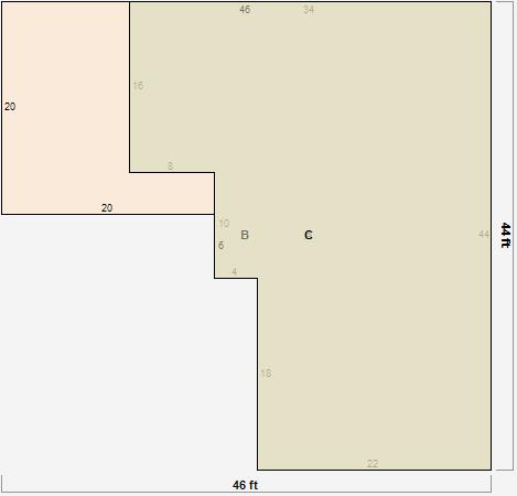
Parcel Sketches
Commercial Card 1
A
MAIN
1200 square feet
B
MAIN
1472 square feet
C
MAIN
1200 square feet
Parcel Images
Please note:
this tab is for informational purposes only and may not show all delinquencies, see the Taxes tab for more accurate delinquent taxes due.