Elected Officials
Courts
Departments
Initiatives
Open Government
About
Login / Register
Home
/
Property & Tax Records
/
Property Records
/
Property & Tax Search
/
Parcel Profile
/
Print View
Search for Another Parcel
Parcel Profile
Historical Card
Sketches
Photos
Tax Map
Taxes
Print View
Print This Page
Address: 1020 22 WALLACE ST
Parcel: 15020022020100
Parcel Profile
Address
1020 | 22 | WALLACE | ST
Street Status
PAVED
School District
CITY OF ERIE SCHOOL
Acreage
0.0643
Classification
R
Land Use Code
TWO FAMILY
Legal Description
1020 22 WALLACE ST 35 X 80
Square Feet
2508
Topo
LEVEL
Utility
ALL PUBLIC
Zoning
Please contact your municipal zoning officer
Deed Book
2024
Deed Page
005344
2026 Tax Values
Land Value / Taxable
5,400 / 5,400.00
Building Value / Taxable
35,800 / 35,800.00
Total Value / Taxable
41,200 / 41,200.00
Clean & Green
Inactive
Homestead Status
Inactive
Farmstead Status
Inactive
Lerta Amount
0
Lerta Expiration Year
0
Residential Data
Card 1
Style
OLD STYLE
Basement
FULL
Year Built
1909
Exterior Wall
ALUMINUM/VINYL
Total Living Area
2508
Full Baths
2
Half Baths
0
Fuel Type
GAS
Heating
CENTRAL
Heating System
FORCED AIR
Stories
2.0
Total Bedrooms
4
Total Family Rooms
2
Total Rooms
10
Fireplaces
0
Other Buildings & Yards
No OBY Data Found
Sales History
Sale Date
Type
Price
Book / Page
Other Info
4/11/2024
LAND & BUILDING
80000
2024 / 005344
SPECIAL WARRANTY DEED
5/24/2021
LAND & BUILDING
1000
2021 / 012858
QUIT CLAIM DEED
12/17/2020
LAND & BUILDING
12500
2020 / 027282
SPECIAL WARRANTY DEED
10/3/2019
LAND & BUILDING
0
2019 / 020188
SPECIAL WARRANTY DEED
9/26/2018
LAND & BUILDING
9000
2018 / 019877
SPECIAL WARRANTY DEED
7/21/2016
LAND & BUILDING
500
2016 / 015304
SPECIAL WARRANTY DEED
10/29/2013
LAND & BUILDING
1954
2013 / 028542
SHERIFF'S DED
2/6/1995
0
0372 / 0453
1/22/1991
0
0148 / 1909
6/18/1974
0
1122 / 0248
4/4/1972
0
1065 / 0062
6/19/1970
0
1024 / 0444
2/28/1962
0
0852 / 0434
4/15/1947
0
0493 / 0512
6/30/1942
0
0426 / 0074
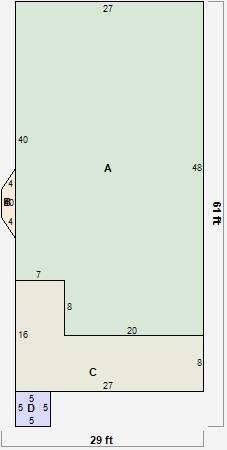
Parcel Sketches
Residential Card 1
A
MAIN
1240 square feet
B
UNFIN BSMT BASEMENT UNFINISHED FRBAY FRAME BAY FRBAY FRAME BAY
14 square feet
C
EFP ENCL FRAME PORCH
272 square feet
D
WDDCK WOOD DECKS
25 square feet
Parcel Images
Please note:
this tab is for informational purposes only and may not show all delinquencies, see the Taxes tab for more accurate delinquent taxes due.