Elected Officials
Courts
Departments
Initiatives
Open Government
About
Login / Register
Home
/
Property & Tax Records
/
Property Records
/
Property & Tax Search
/
Parcel Profile
/
Print View
Search for Another Parcel
Parcel Profile
Historical Card
Sketches
Photos
Tax Map
Taxes
Print View
Print This Page
Address: 460 E 14 ST
Parcel: 15020023020000
Parcel Profile
Address
460 | E | 14 | ST
Street Status
PAVED | SIDEWALK
School District
CITY OF ERIE SCHOOL
Acreage
0.0964
Classification
C
Land Use Code
RESTAURANTS, STORES (RETAIL)
Legal Description
460 E 14 ST 40X105
Square Feet
4100
Topo
LEVEL
Utility
ALL PUBLIC
Zoning
Please contact your municipal zoning officer
Deed Book
2019
Deed Page
005176
2026 Tax Values
Land Value / Taxable
6,300 / 6,300.00
Building Value / Taxable
57,600 / 57,600.00
Total Value / Taxable
63,900 / 63,900.00
Clean & Green
Inactive
Homestead Status
Inactive
Farmstead Status
Inactive
Lerta Amount
0
Lerta Expiration Year
0
Commercial Data
Card 1
MIXED RES/COMM
Business Living Area - 4100
Year Built - 1887
Improvement Name - FLOWER SHOP
Value - 57580
Other Buildings & Yards
No OBY Data Found
Sales History
Sale Date
Type
Price
Book / Page
Other Info
3/26/2019
LAND & BUILDING
0
2019 / 005176
QUIT CLAIM DEED
10/2/2017
LAND & BUILDING
15000
2017 / 021521
SPECIAL WARRANTY DEED
7/16/2014
LAND & BUILDING
21000
2014 / 014443
SPECIAL WARRANTY DEED
4/7/2014
LAND & BUILDING
0
2014 / 006357
SPECIAL WARRANTY DEED
1/22/1955
0
0718 / 0236
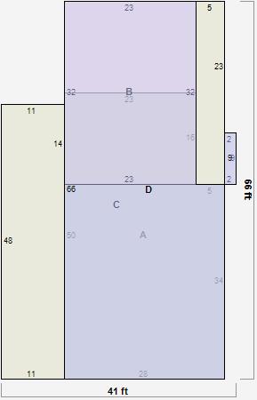
Parcel Sketches
Commercial Card 1
A
MAIN
1320 square feet
B
MAIN
736 square feet
C
MAIN
1658 square feet
D
MAIN
1706 square feet
Parcel Images
Please note:
this tab is for informational purposes only and may not show all delinquencies, see the Taxes tab for more accurate delinquent taxes due.