Elected Officials
Courts
Departments
Initiatives
Open Government
About
Login / Register
Home
/
Property & Tax Records
/
Property Records
/
Property & Tax Search
/
Parcel Profile
/
Print View
Search for Another Parcel
Parcel Profile
Historical Card
Sketches
Photos
Tax Map
Taxes
Print View
Print This Page
Address: 409 E 13 ST
Parcel: 15020023021300
Parcel Profile
Address
409 | E | 13 | ST
Street Status
PAVED
School District
CITY OF ERIE SCHOOL
Acreage
0.1928
Classification
R
Land Use Code
TWO FAMILY
Legal Description
409 E 13 ST LOTS 12 & 13 80 X 105
Square Feet
1860
Topo
LEVEL
Utility
ALL PUBLIC
Zoning
Please contact your municipal zoning officer
Deed Book
2013
Deed Page
006396
2026 Tax Values
Land Value / Taxable
6,700 / 6,700.00
Building Value / Taxable
28,500 / 28,500.00
Total Value / Taxable
35,200 / 35,200.00
Clean & Green
Inactive
Homestead Status
Active
Farmstead Status
Inactive
Lerta Amount
0
Lerta Expiration Year
0
Residential Data
Card 1
Style
OLD STYLE
Basement
FULL
Year Built
1892
Exterior Wall
ALUMINUM/VINYL
Total Living Area
1860
Full Baths
2
Half Baths
0
Fuel Type
GAS
Heating
CENTRAL
Heating System
FORCED AIR
Stories
2.0
Total Bedrooms
7
Total Family Rooms
0
Total Rooms
12
Fireplaces
0
Other Buildings & Yards
No OBY Data Found
Sales History
Sale Date
Type
Price
Book / Page
Other Info
3/20/2013
LAND & BUILDING
0
2013 / 006396
DEED
3/25/1988
0
0044 / 2118
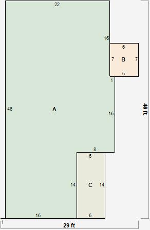
Parcel Sketches
Residential Card 1
A
MAIN
930 square feet
B
EFP ENCL FRAME PORCH
42 square feet
C
EFP ENCL FRAME PORCH
84 square feet
Parcel Images
Please note:
this tab is for informational purposes only and may not show all delinquencies, see the Taxes tab for more accurate delinquent taxes due.