Elected Officials
Courts
Departments
Initiatives
Open Government
About
Login / Register
Home
/
Property & Tax Records
/
Property Records
/
Property & Tax Search
/
Parcel Profile
/
Print View
Search for Another Parcel
Parcel Profile
Historical Card
Sketches
Photos
Tax Map
Taxes
Print View
Print This Page
Address: 442 E 14 ST
Parcel: 15020023022800
Parcel Profile
Address
442 | E | 14 | ST
Street Status
PAVED | SIDEWALK
School District
CITY OF ERIE SCHOOL
Acreage
0.0964
Classification
R
Land Use Code
MULTIPLE DWELLINGS
Legal Description
442 E 14 ST 40 X 105
Square Feet
2950
Topo
LEVEL
Utility
ALL PUBLIC
Zoning
Please contact your municipal zoning officer
Deed Book
1538
Deed Page
0170
2026 Tax Values
Land Value / Taxable
5,900 / 5,900.00
Building Value / Taxable
37,100 / 37,100.00
Total Value / Taxable
43,000 / 43,000.00
Clean & Green
Inactive
Homestead Status
Inactive
Farmstead Status
Inactive
Lerta Amount
0
Lerta Expiration Year
0
Residential Data
Card 1
Style
OLD STYLE
Basement
FULL
Year Built
1872
Exterior Wall
COMPOSITION
Total Living Area
2264
Full Baths
2
Half Baths
0
Fuel Type
GAS
Heating
CENTRAL
Heating System
FORCED AIR
Stories
2.0
Total Bedrooms
5
Total Family Rooms
0
Total Rooms
12
Fireplaces
0
Card 2
Style
CONVENTIONAL
Basement
FULL
Year Built
1872
Exterior Wall
COMPOSITION
Total Living Area
686
Full Baths
1
Half Baths
0
Fuel Type
GAS
Heating
CENTRAL
Heating System
FORCED AIR
Stories
1.0
Total Bedrooms
3
Total Family Rooms
0
Total Rooms
6
Fireplaces
0
Other Buildings & Yards
No OBY Data Found
Sales History
Sale Date
Type
Price
Book / Page
Other Info
6/1/1984
0
1538 / 0170
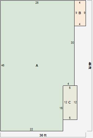
Parcel Sketches
Residential Card 1
A
MAIN
1132 square feet
B
OFP OPEN FRAME PORCH
36 square feet
C
EFP ENCL FRAME PORCH
60 square feet
Residential Card 2
A
MAIN
572 square feet
B
OFP OPEN FRAME PORCH
18 square feet
Parcel Images
Please note:
this tab is for informational purposes only and may not show all delinquencies, see the Taxes tab for more accurate delinquent taxes due.