Elected Officials
Courts
Departments
Initiatives
Open Government
About
Login / Register
Home
/
Property & Tax Records
/
Property Records
/
Property & Tax Search
/
Parcel Profile
/
Print View
Search for Another Parcel
Parcel Profile
Historical Card
Sketches
Photos
Tax Map
Taxes
Print View
Print This Page
Address: 1302 04 WALLACE ST
Parcel: 15020023023300
Parcel Profile
Address
1302 | 04 | WALLACE | ST
Street Status
PAVED | SIDEWALK
School District
CITY OF ERIE SCHOOL
Acreage
0.0759
Classification
C
Land Use Code
RESTAURANTS, STORES (RETAIL)
Legal Description
1302 04 WALLACE ST 64.06XIRR
Square Feet
4530
Topo
LEVEL
Utility
ALL PUBLIC
Zoning
Please contact your municipal zoning officer
Deed Book
2024
Deed Page
006035
2026 Tax Values
Land Value / Taxable
5,000 / 5,000.00
Building Value / Taxable
35,000 / 35,000.00
Total Value / Taxable
40,000 / 40,000.00
Clean & Green
Inactive
Homestead Status
Inactive
Farmstead Status
Inactive
Lerta Amount
0
Lerta Expiration Year
0
Commercial Data
Card 1
MIXED RES/COMM
Business Living Area - 4530
Year Built - 1882
Improvement Name - VACANT STORE/APTS
Value - 49200
Other Buildings & Yards
No OBY Data Found
Sales History
Sale Date
Type
Price
Book / Page
Other Info
4/23/2024
LAND & BUILDING
0
2024 / 006035
SPECIAL WARRANTY DEED
2/16/2010
LAND & BUILDING
0
2010 / 003257
QUIT CLAIM DEED
2/16/2010
LAND & BUILDING
5000
2010 / 003258
DEED
3/11/2009
LAND & BUILDING
0
1548 / 0455
TAX DEED
8/7/2003
LAND & BUILDING
0
1047 / 1020
QUIT CLAIM DEED
10/9/2000
0
0731 / 0563
5/13/1999
LAND & BUILDING
52500
635 / 2343
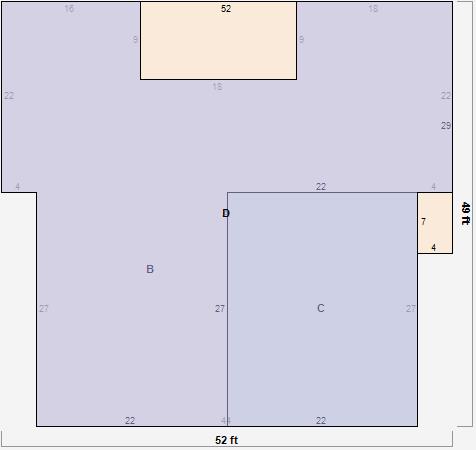
Parcel Sketches
Commercial Card 1
A
MAIN
2170 square feet
B
MAIN
1766 square feet
C
MAIN
594 square feet
D
MAIN
2170 square feet
Parcel Images
Please note:
this tab is for informational purposes only and may not show all delinquencies, see the Taxes tab for more accurate delinquent taxes due.