Elected Officials
Courts
Departments
Initiatives
Open Government
About
Login / Register
Home
/
Property & Tax Records
/
Property Records
/
Property & Tax Search
/
Parcel Profile
/
Print View
Search for Another Parcel
Parcel Profile
Historical Card
Sketches
Photos
Tax Map
Taxes
Print View
Print This Page
Address: 911 913 WALLACE ST
Parcel: 15020026011500
Parcel Profile
Address
911 | 913 | WALLACE | ST
Street Status
PAVED | SIDEWALK
School District
CITY OF ERIE SCHOOL
Acreage
0.0735
Classification
R
Land Use Code
TWO FAMILY
Legal Description
911 WALLACE ST 40 X 80
Square Feet
2284
Topo
LEVEL
Utility
ALL PUBLIC
Zoning
Please contact your municipal zoning officer
Deed Book
2022
Deed Page
009489
2026 Tax Values
Land Value / Taxable
5,500 / 5,500.00
Building Value / Taxable
17,360 / 17,360.00
Total Value / Taxable
22,860 / 22,860.00
Clean & Green
Inactive
Homestead Status
Inactive
Farmstead Status
Inactive
Lerta Amount
0
Lerta Expiration Year
0
Residential Data
Card 1
Style
OLD STYLE
Basement
FULL
Year Built
1884
Exterior Wall
ALUMINUM/VINYL
Total Living Area
2284
Full Baths
2
Half Baths
0
Fuel Type
GAS
Heating
CENTRAL
Heating System
FORCED AIR
Stories
2.0
Total Bedrooms
6
Total Family Rooms
0
Total Rooms
12
Fireplaces
0
Other Buildings & Yards
No OBY Data Found
Sales History
Sale Date
Type
Price
Book / Page
Other Info
5/3/2022
LAND & BUILDING
0
2022 / 009489
SPECIAL WARRANTY DEED
3/18/2022
LAND & BUILDING
40000
2022 / 005786
SPECIAL WARRANTY DEED
3/13/2015
LAND & BUILDING
0
2015 / 004592
TAX DEED
12/15/2010
LAND & BUILDING
0
2010 / 031670
QUIT CLAIM DEED
2/2/1996
0
0422 / 2073
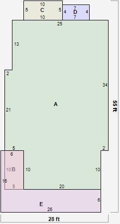
Parcel Sketches
Residential Card 1
A
MAIN
1092 square feet
B
EFP ENCL FRAME PORCH 1S FR ONE STORY FRAME
50 square feet
C
1S FR ONE STORY FRAME
50 square feet
D
EFP ENCL FRAME PORCH
28 square feet
E
OFP OPEN FRAME PORCH
216 square feet
Parcel Images
Please note:
this tab is for informational purposes only and may not show all delinquencies, see the Taxes tab for more accurate delinquent taxes due.