Elected Officials
Courts
Departments
Initiatives
Open Government
About
Login / Register
Home
/
Property & Tax Records
/
Property Records
/
Property & Tax Search
/
Parcel Profile
/
Print View
Search for Another Parcel
Parcel Profile
Historical Card
Sketches
Photos
Tax Map
Taxes
Print View
Print This Page
Address: 823 WALLACE ST
Parcel: 15020026022900
Parcel Profile
Address
823 | WALLACE | ST
Street Status
PAVED | SIDEWALK
School District
CITY OF ERIE SCHOOL
Acreage
0.0567
Classification
R
Land Use Code
SINGLE FAMILY
Legal Description
823 WALLACE ST 37.5 X IRR
Square Feet
1929
Topo
LEVEL
Utility
ALL PUBLIC
Zoning
Please contact your municipal zoning officer
Deed Book
1368
Deed Page
0198
2026 Tax Values
Land Value / Taxable
5,200 / 5,200.00
Building Value / Taxable
23,400 / 23,400.00
Total Value / Taxable
28,600 / 28,600.00
Clean & Green
Inactive
Homestead Status
Active
Farmstead Status
Inactive
Lerta Amount
0
Lerta Expiration Year
0
Residential Data
Card 1
Style
OLD STYLE
Basement
FULL
Year Built
1882
Exterior Wall
COMPOSITION
Total Living Area
1929
Full Baths
1
Half Baths
0
Fuel Type
GAS
Heating
CENTRAL
Heating System
FORCED AIR
Stories
1.5
Total Bedrooms
3
Total Family Rooms
0
Total Rooms
6
Fireplaces
0
Other Buildings & Yards
No OBY Data Found
Sales History
Sale Date
Type
Price
Book / Page
Other Info
10/18/1979
0
1368 / 0198
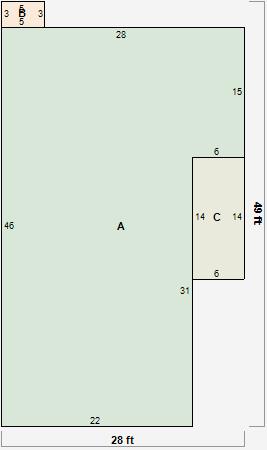
Parcel Sketches
Residential Card 1
A
MAIN
1102 square feet
B
OFP OPEN FRAME PORCH
15 square feet
C
OFP OPEN FRAME PORCH
84 square feet
Parcel Images
Please note:
this tab is for informational purposes only and may not show all delinquencies, see the Taxes tab for more accurate delinquent taxes due.