Elected Officials
Courts
Departments
Initiatives
Open Government
About
Login / Register
Home
/
Property & Tax Records
/
Property Records
/
Property & Tax Search
/
Parcel Profile
/
Print View
Search for Another Parcel
Parcel Profile
Historical Card
Sketches
Photos
Tax Map
Taxes
Print View
Print This Page
Address: 546 E 12 ST
Parcel: 15020027013400
Parcel Profile
Address
546 | E | 12 | ST
Street Status
PAVED | SIDEWALK
School District
CITY OF ERIE SCHOOL
Acreage
0.1446
Classification
R
Land Use Code
SINGLE FAMILY
Legal Description
546 E 12 ST 39.37X160
Square Feet
1372
Topo
LEVEL
Utility
ALL PUBLIC
Zoning
Please contact your municipal zoning officer
Deed Book
0616
Deed Page
2381
2025 Tax Values
Land Value / Taxable
6,400 / 6,400.00
Building Value / Taxable
24,700 / 24,700.00
Total Value / Taxable
31,100 / 31,100.00
Clean & Green
Inactive
Homestead Status
Active
Farmstead Status
Inactive
Lerta Amount
0
Lerta Expiration Year
0
Residential Data
Card 1
Style
CAPE
Basement
FULL
Year Built
1897
Exterior Wall
ALUMINUM/VINYL
Total Living Area
1372
Full Baths
1
Half Baths
0
Fuel Type
GAS
Heating
CENTRAL
Heating System
FORCED AIR
Stories
1.0
Total Bedrooms
3
Total Family Rooms
0
Total Rooms
6
Fireplaces
0
Other Buildings & Yards
No OBY Data Found
Sales History
Sale Date
Type
Price
Book / Page
Other Info
2/9/1999
LAND & BUILDING
1
0616 / 2381
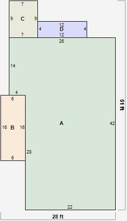
Parcel Sketches
Residential Card 1
A
MAIN
980 square feet
B
EFP ENCL FRAME PORCH
96 square feet
C
WDDCK WOOD DECKS
63 square feet
D
EFP ENCL FRAME PORCH
48 square feet
Parcel Images