Elected Officials
Courts
Departments
Initiatives
Open Government
About
Login / Register
Home
/
Property & Tax Records
/
Property Records
/
Property & Tax Search
/
Parcel Profile
/
Print View
Search for Another Parcel
Parcel Profile
Historical Card
Sketches
Photos
Tax Map
Taxes
Print View
Print This Page
Address: 554 E 12 ST
Parcel: 15020027013600
Parcel Profile
Address
554 | E | 12 | ST
Street Status
PAVED | SIDEWALK
School District
CITY OF ERIE SCHOOL
Acreage
0.1446
Classification
R
Land Use Code
MULTIPLE DWELLINGS
Legal Description
554 E 12 ST 39.37X160
Square Feet
2305
Topo
LEVEL
Utility
ALL PUBLIC
Zoning
Please contact your municipal zoning officer
Deed Book
2019
Deed Page
002768
2026 Tax Values
Land Value / Taxable
6,400 / 6,400.00
Building Value / Taxable
36,640 / 36,640.00
Total Value / Taxable
43,040 / 43,040.00
Clean & Green
Inactive
Homestead Status
Inactive
Farmstead Status
Inactive
Lerta Amount
0
Lerta Expiration Year
0
Residential Data
Card 1
Style
OLD STYLE
Basement
PART
Year Built
1902
Exterior Wall
ALUMINUM/VINYL
Total Living Area
1373
Full Baths
1
Half Baths
0
Fuel Type
GAS
Heating
CENTRAL
Heating System
FORCED AIR
Stories
1.0
Total Bedrooms
4
Total Family Rooms
0
Total Rooms
8
Fireplaces
0
Card 2
Style
CAPE
Basement
NONE
Year Built
1882
Exterior Wall
ALUMINUM/VINYL
Total Living Area
932
Full Baths
1
Half Baths
0
Fuel Type
GAS
Heating
CENTRAL
Heating System
FORCED AIR
Stories
1.0
Total Bedrooms
2
Total Family Rooms
0
Total Rooms
4
Fireplaces
0
Other Buildings & Yards
No OBY Data Found
Sales History
Sale Date
Type
Price
Book / Page
Other Info
2/15/2019
LAND & BUILDING
0
2019 / 002768
TAX DEED
3/3/2017
LAND & BUILDING
35000
2017 / 004453
SPECIAL WARRANTY DEED
7/22/1980
0
1392 / 0296
Parcel Sketches
Residential Card 1
A
MAIN
972 square feet
B
OFP OPEN FRAME PORCH
16 square feet
C
WDDCK WOOD DECKS
48 square feet
D
OFP OPEN FRAME PORCH
192 square feet
E
EFP ENCL FRAME PORCH
36 square feet
F
UNFIN BSMT BASEMENT UNFINISHED FRBAY FRAME BAY
12 square feet
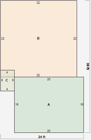
Residential Card 2
A
MAIN
320 square feet
B
1S FR ONE STORY FRAME
484 square feet
C
EFP ENCL FRAME PORCH
24 square feet
Parcel Images
Please note:
this tab is for informational purposes only and may not show all delinquencies, see the Taxes tab for more accurate delinquent taxes due.