Elected Officials
Courts
Departments
Initiatives
Open Government
About
Login / Register
Home
/
Property & Tax Records
/
Property Records
/
Property & Tax Search
/
Parcel Profile
/
Print View
Search for Another Parcel
Parcel Profile
Historical Card
Sketches
Photos
Tax Map
Taxes
Print View
Print This Page
Address: 1013 WALLACE ST
Parcel: 15020027022400
Parcel Profile
Address
1013 | WALLACE | ST
Street Status
PAVED | SIDEWALK
School District
CITY OF ERIE SCHOOL
Acreage
0.0914
Classification
R
Land Use Code
SINGLE FAMILY
Legal Description
1013 WALLACE ST 65X61.25
Square Feet
2256
Topo
LEVEL
Utility
ALL PUBLIC
Zoning
Please contact your municipal zoning officer
Deed Book
1211
Deed Page
0669
2026 Tax Values
Land Value / Taxable
5,800 / 5,800.00
Building Value / Taxable
35,100 / 35,100.00
Total Value / Taxable
40,900 / 40,900.00
Clean & Green
Inactive
Homestead Status
Active
Farmstead Status
Inactive
Lerta Amount
0
Lerta Expiration Year
0
Residential Data
Card 1
Style
OLD STYLE
Basement
PART
Year Built
1882
Exterior Wall
BRICK
Total Living Area
2256
Full Baths
1
Half Baths
0
Fuel Type
GAS
Heating
CENTRAL
Heating System
FORCED AIR
Stories
2.0
Total Bedrooms
4
Total Family Rooms
0
Total Rooms
9
Fireplaces
0
Other Buildings & Yards
No OBY Data Found
Sales History
Sale Date
Type
Price
Book / Page
Other Info
2/16/2005
LAND & BUILDING
0
1211 / 0669
WARRANTY/SURVIVORSHIP DEED
12/20/1990
0
0146 / 1856
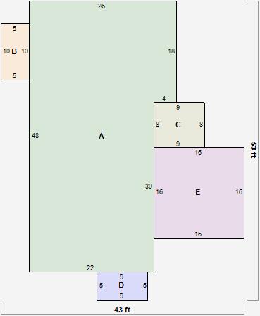
Parcel Sketches
Residential Card 1
A
MAIN
1128 square feet
B
OFP OPEN FRAME PORCH
50 square feet
C
WDDCK WOOD DECKS
72 square feet
D
OFP OPEN FRAME PORCH
45 square feet
E
CARPT CARPORT
256 square feet
Parcel Images
Please note:
this tab is for informational purposes only and may not show all delinquencies, see the Taxes tab for more accurate delinquent taxes due.