Address: 560 E 13 ST   Parcel: 15020028030000
Parcel Profile
Address560 | E | 13 | ST
Street StatusPAVED | SIDEWALK
School DistrictCITY OF ERIE SCHOOL
Acreage0.0934
ClassificationC
Land Use CodeRESTAURANTS, STORES (RETAIL)
Legal Description560 E 13 ST 38.75X105
Square Feet2850
TopoLEVEL
UtilityALL PUBLIC
ZoningPlease contact your municipal zoning officer
Deed Book2012
Deed Page019853
2025 Tax Values
Land Value / Taxable6,100 / 6,100.00
Building Value / Taxable42,400 / 42,400.00
Total Value / Taxable48,500 / 48,500.00
Clean & GreenInactive
Homestead StatusActive
Farmstead StatusInactive
Lerta Amount0
Lerta Expiration Year0
Commercial Data
Card 1MIXED RES/COMM
 Business Living Area - 2850
 Year Built - 1872
 Improvement Name - LA VIEQUENSA
 Value - 49210
Other Buildings & Yards
DescriptionBuiltWidthLengthArea
 FRAME OR CB DETACHED GARAGE 1900 0 0 800
Sales History
Sale DateTypePriceBook / PageOther Info
7/24/2012LAND & BUILDING02012 / 019853QUIT CLAIM DEED
2/6/2003LAND & BUILDING0974 / 518AFFIDAVIT
6/21/1995 00389 / 0406 



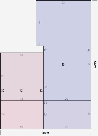
Parcel Sketches

Commercial Card 1

Commercial Card 1
AMAIN1137 square feet
BMAIN456 square feet
CMAIN1257 square feet
DMAIN1137 square feet
EMAIN576 square feet

Parcel Images

parcel photo