Elected Officials
Courts
Departments
Initiatives
Open Government
About
Login / Register
Home
/
Property & Tax Records
/
Property Records
/
Property & Tax Search
/
Parcel Profile
/
Print View
Search for Another Parcel
Parcel Profile
Historical Card
Sketches
Photos
Tax Map
Taxes
Print View
Print This Page
Address: 646 E 10 ST
Parcel: 15020031013500
Parcel Profile
Address
646 | E | 10 | ST
Street Status
PAVED
School District
CITY OF ERIE SCHOOL
Acreage
0.1515
Classification
R
Land Use Code
SINGLE FAMILY
Legal Description
646 E 10 ST 40X165
Square Feet
1040
Topo
LEVEL
Utility
ALL PUBLIC
Zoning
Please contact your municipal zoning officer
Deed Book
2022
Deed Page
013973
2026 Tax Values
Land Value / Taxable
6,500 / 6,500.00
Building Value / Taxable
41,120 / 41,120.00
Total Value / Taxable
47,620 / 47,620.00
Clean & Green
Inactive
Homestead Status
Inactive
Farmstead Status
Inactive
Lerta Amount
0.00
Lerta Expiration Year
2013
Residential Data
Card 1
Style
RANCH
Basement
CRAWL
Year Built
2004
Exterior Wall
ALUMINUM/VINYL
Total Living Area
1040
Full Baths
1
Half Baths
0
Fuel Type
GAS
Heating
CENTRAL
Heating System
FORCED AIR
Stories
1.0
Total Bedrooms
2
Total Family Rooms
0
Total Rooms
5
Fireplaces
0
Other Buildings & Yards
No OBY Data Found
Sales History
Sale Date
Type
Price
Book / Page
Other Info
6/29/2022
LAND & BUILDING
0
2022 / 013973
DEED
7/1/2004
LAND
42650
1151 / 0563
DEED
12/6/2002
LAND
0
954 / 237
AFFIDAVIT
3/21/2000
0
0693 / 0617
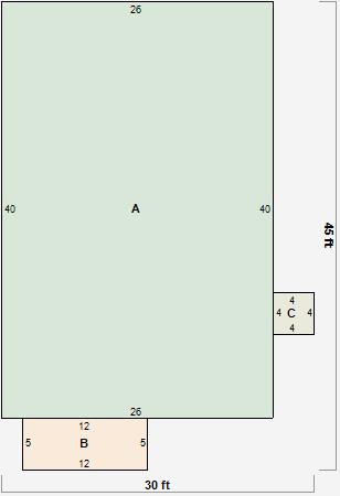
Parcel Sketches
Residential Card 1
A
MAIN
1040 square feet
B
OFP OPEN FRAME PORCH
60 square feet
C
WDDCK WOOD DECKS
16 square feet
Parcel Images
Please note:
this tab is for informational purposes only and may not show all delinquencies, see the Taxes tab for more accurate delinquent taxes due.