Elected Officials
Courts
Departments
Initiatives
Open Government
About
Login / Register
Home
/
Property & Tax Records
/
Property Records
/
Property & Tax Search
/
Parcel Profile
/
Print View
Search for Another Parcel
Parcel Profile
Historical Card
Sketches
Photos
Tax Map
Taxes
Print View
Print This Page
Address: 653 E 8 ST
Parcel: 15020031020200
Parcel Profile
Address
653 | E | 8 | ST
Street Status
PAVED | SIDEWALK
School District
CITY OF ERIE SCHOOL
Acreage
0.1562
Classification
R
Land Use Code
SINGLE FAMILY
Legal Description
653 E 8 ST 41.25X165
Square Feet
2050
Topo
LEVEL
Utility
ALL PUBLIC
Zoning
Please contact your municipal zoning officer
Deed Book
2021
Deed Page
010259
2025 Tax Values
Land Value / Taxable
6,500 / 6,500.00
Building Value / Taxable
12,400 / 12,400.00
Total Value / Taxable
18,900 / 18,900.00
Clean & Green
Inactive
Homestead Status
Inactive
Farmstead Status
Inactive
Lerta Amount
0
Lerta Expiration Year
0
Residential Data
Card 1
Style
OLD STYLE
Basement
PART
Year Built
1890
Exterior Wall
COMPOSITION
Total Living Area
2050
Full Baths
1
Half Baths
0
Fuel Type
GAS
Heating
CENTRAL
Heating System
FORCED AIR
Stories
1.5
Total Bedrooms
6
Total Family Rooms
1
Total Rooms
10
Fireplaces
0
Other Buildings & Yards
No OBY Data Found
Sales History
Sale Date
Type
Price
Book / Page
Other Info
4/28/2021
LAND & BUILDING
500
2021 / 010259
QUIT CLAIM DEED
4/26/2019
LAND & BUILDING
500
2019 / 007475
DEED
2/22/2007
LAND & BUILDING
13500
1396 / 1293
WARRANTY/SURVIVORSHIP DEED
11/23/2005
LAND & BUILDING
0
1289 / 1258
WARRANTY/SURVIVORSHIP DEED
11/24/1941
0
0418 / 0139
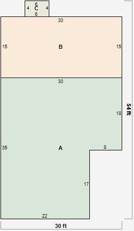
Parcel Sketches
Residential Card 1
A
MAIN
914 square feet
B
UNFIN BSMT BASEMENT UNFINISHED 1S FR ONE STORY FRAME
450 square feet
C
FR UT FRAME UTILITY BUILDING
24 square feet
Parcel Images