Elected Officials
Courts
Departments
Initiatives
Open Government
About
Login / Register
Home
/
Property & Tax Records
/
Property Records
/
Property & Tax Search
/
Parcel Profile
/
Print View
Search for Another Parcel
Parcel Profile
Historical Card
Sketches
Photos
Tax Map
Taxes
Print View
Print This Page
Address: 656 E 9 ST
Parcel: 15020031023300
Parcel Profile
Address
656 | E | 9 | ST
Street Status
PAVED | SIDEWALK
School District
CITY OF ERIE SCHOOL
Acreage
0.1528
Classification
R
Land Use Code
SINGLE FAMILY
Legal Description
656 E 9 ST 55X121
Square Feet
1456
Topo
LEVEL
Utility
ALL PUBLIC
Zoning
Please contact your municipal zoning officer
Deed Book
0475
Deed Page
0405
2026 Tax Values
Land Value / Taxable
6,500 / 6,500.00
Building Value / Taxable
24,700 / 24,700.00
Total Value / Taxable
31,200 / 31,200.00
Clean & Green
Inactive
Homestead Status
Active
Farmstead Status
Inactive
Lerta Amount
0
Lerta Expiration Year
0
Residential Data
Card 1
Style
OLD STYLE
Basement
FULL
Year Built
1915
Exterior Wall
COMPOSITION
Total Living Area
1456
Full Baths
1
Half Baths
0
Fuel Type
GAS
Heating
CENTRAL
Heating System
FORCED AIR
Stories
2.0
Total Bedrooms
4
Total Family Rooms
0
Total Rooms
7
Fireplaces
0
Other Buildings & Yards
No OBY Data Found
Sales History
Sale Date
Type
Price
Book / Page
Other Info
12/10/1996
0
0475 / 0405
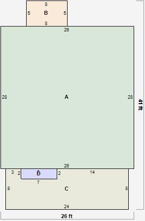
Parcel Sketches
Residential Card 1
A
MAIN
728 square feet
B
EFP ENCL FRAME PORCH
40 square feet
C
OFP OPEN FRAME PORCH
178 square feet
D
EFP ENCL FRAME PORCH
14 square feet
Parcel Images