Elected Officials
Courts
Departments
Initiatives
Open Government
About
Login / Register
Home
/
Property & Tax Records
/
Property Records
/
Property & Tax Search
/
Parcel Profile
/
Print View
Search for Another Parcel
Parcel Profile
Historical Card
Sketches
Photos
Tax Map
Taxes
Print View
Print This Page
Address: 651 53 E 11 ST
Parcel: 15020032010100
Parcel Profile
Address
651 | 53 | E | 11 | ST
Street Status
PAVED | SIDEWALK
School District
CITY OF ERIE SCHOOL
Acreage
0.1553
Classification
R
Land Use Code
TWO FAMILY
Legal Description
651 53 E 11 ST 41X165
Square Feet
2384
Topo
LEVEL
Utility
ALL PUBLIC
Zoning
Please contact your municipal zoning officer
Deed Book
2020
Deed Page
000929
2026 Tax Values
Land Value / Taxable
6,500 / 6,500.00
Building Value / Taxable
33,900 / 33,900.00
Total Value / Taxable
40,400 / 40,400.00
Clean & Green
Inactive
Homestead Status
Inactive
Farmstead Status
Inactive
Lerta Amount
0
Lerta Expiration Year
0
Residential Data
Card 1
Style
OLD STYLE
Basement
FULL
Year Built
1873
Exterior Wall
COMPOSITION
Total Living Area
2384
Full Baths
2
Half Baths
0
Fuel Type
GAS
Heating
CENTRAL
Heating System
FORCED AIR
Stories
2.0
Total Bedrooms
6
Total Family Rooms
0
Total Rooms
11
Fireplaces
0
Other Buildings & Yards
Description
Built
Width
Length
Area
FRAME OR CB DETACHED GARAGE
1978
24
24
576
Sales History
Sale Date
Type
Price
Book / Page
Other Info
1/16/2020
LAND & BUILDING
30000
2020 / 000929
SPECIAL WARRANTY DEED
5/8/2014
LAND & BUILDING
0
2014 / 008779
QUIT CLAIM DEED
4/30/2009
LAND & BUILDING
0
1558 / 1430
QUIT CLAIM DEED
11/15/2007
LAND & BUILDING
0
1460 / 0853
FIDUCIARY DEED
12/9/1987
0
0036 / 0093
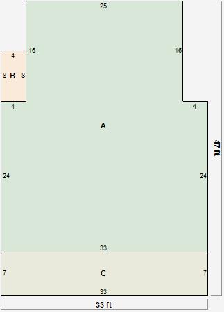
Parcel Sketches
Residential Card 1
A
MAIN
1192 square feet
B
OFP OPEN FRAME PORCH
32 square feet
C
UNFIN BSMT BASEMENT UNFINISHED OFP OPEN FRAME PORCH
231 square feet
Parcel Images
Please note:
this tab is for informational purposes only and may not show all delinquencies, see the Taxes tab for more accurate delinquent taxes due.