Elected Officials
Courts
Departments
Initiatives
Open Government
About
Login / Register
Home
/
Property & Tax Records
/
Property Records
/
Property & Tax Search
/
Parcel Profile
/
Print View
Search for Another Parcel
Parcel Profile
Historical Card
Sketches
Photos
Tax Map
Taxes
Print View
Print This Page
Address: 1012 WAYNE ST
Parcel: 15020035020400
Parcel Profile
Address
1012 | WAYNE | ST
Street Status
PAVED | SIDEWALK
School District
CITY OF ERIE SCHOOL
Acreage
0.1148
Classification
R
Land Use Code
SINGLE FAMILY
Legal Description
1012 WAYNE ST 28X63
Square Feet
1334
Topo
LEVEL
Utility
ALL PUBLIC
Zoning
Please contact your municipal zoning officer
Deed Book
2016
Deed Page
003604
2026 Tax Values
Land Value / Taxable
6,300 / 6,300.00
Building Value / Taxable
12,100 / 12,100.00
Total Value / Taxable
18,400 / 18,400.00
Clean & Green
Inactive
Homestead Status
Active
Farmstead Status
Inactive
Lerta Amount
0
Lerta Expiration Year
0
Residential Data
Card 1
Style
OLD STYLE
Basement
FULL
Year Built
1915
Exterior Wall
COMPOSITION
Total Living Area
1334
Full Baths
1
Half Baths
0
Fuel Type
GAS
Heating
CENTRAL
Heating System
FORCED AIR
Stories
2.0
Total Bedrooms
3
Total Family Rooms
0
Total Rooms
6
Fireplaces
0
Other Buildings & Yards
No OBY Data Found
Sales History
Sale Date
Type
Price
Book / Page
Other Info
2/23/2016
LAND & BUILDING
0
2016 / 003604
FIDUCIARY DEED
3/15/1995
0
0375 / 2242
1/7/1977
10000
1250 / 0035
2/4/1946
0
0471 / 0140
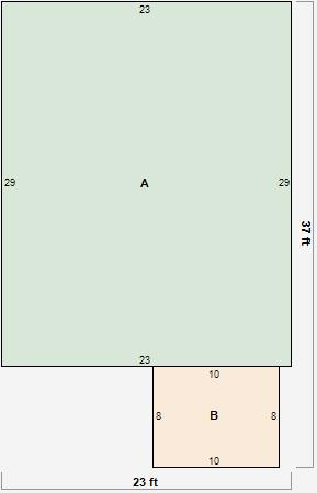
Parcel Sketches
Residential Card 1
A
MAIN
667 square feet
B
OFP OPEN FRAME PORCH
80 square feet
Parcel Images
Please note:
this tab is for informational purposes only and may not show all delinquencies, see the Taxes tab for more accurate delinquent taxes due.