Elected Officials
Courts
Departments
Initiatives
Open Government
About
Login / Register
Home
/
Property & Tax Records
/
Property Records
/
Property & Tax Search
/
Parcel Profile
/
Print View
Search for Another Parcel
Parcel Profile
Historical Card
Sketches
Photos
Tax Map
Taxes
Print View
Print This Page
Address: 758 E 11 ST
Parcel: 15020035024000
Parcel Profile
Address
758 | E | 11 | ST
Street Status
PAVED | SIDEWALK
School District
CITY OF ERIE SCHOOL
Acreage
0.0964
Classification
R
Land Use Code
TWO FAMILY
Legal Description
758 E 11 ST 35X120
Square Feet
2628
Topo
LEVEL
Utility
ALL PUBLIC
Zoning
Please contact your municipal zoning officer
Deed Book
0050
Deed Page
1424
2026 Tax Values
Land Value / Taxable
5,900 / 5,900.00
Building Value / Taxable
33,500 / 33,500.00
Total Value / Taxable
39,400 / 39,400.00
Clean & Green
Inactive
Homestead Status
Active
Farmstead Status
Inactive
Lerta Amount
0
Lerta Expiration Year
0
Residential Data
Card 1
Style
OLD STYLE
Basement
FULL
Year Built
1900
Exterior Wall
ALUMINUM/VINYL
Total Living Area
2628
Full Baths
2
Half Baths
0
Fuel Type
GAS
Heating
CENTRAL
Heating System
FORCED AIR
Stories
2.0
Total Bedrooms
3
Total Family Rooms
2
Total Rooms
13
Fireplaces
0
Other Buildings & Yards
Description
Built
Width
Length
Area
FRAME OR CB DETACHED GARAGE
1959
12
22
264
Sales History
Sale Date
Type
Price
Book / Page
Other Info
5/19/1988
27000
0050 / 1424
2/20/1979
0
1339 / 0307
12/28/1972
0
1086 / 0329
2/4/1972
17000
1062 / 0020
3/12/1947
0
0489 / 0331
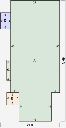
Parcel Sketches
Residential Card 1
A
MAIN
1304 square feet
B
EFP ENCL FRAME PORCH
36 square feet
C
UNFIN BSMT BASEMENT UNFINISHED FRBAY FRAME BAY
20 square feet
D
OFP OPEN FRAME PORCH
40 square feet
Parcel Images
Please note:
this tab is for informational purposes only and may not show all delinquencies, see the Taxes tab for more accurate delinquent taxes due.