Elected Officials
Courts
Departments
Initiatives
Open Government
About
Login / Register
Home
/
Property & Tax Records
/
Property Records
/
Property & Tax Search
/
Parcel Profile
/
Print View
Search for Another Parcel
Parcel Profile
Historical Card
Sketches
Photos
Tax Map
Taxes
Print View
Print This Page
Address: 1318 WAYNE ST
Parcel: 15020036020000
Parcel Profile
Address
1318 | WAYNE | ST
Street Status
PAVED | SIDEWALK
School District
CITY OF ERIE SCHOOL
Acreage
0.0969
Classification
R
Land Use Code
TWO FAMILY
Legal Description
1318 WAYNE ST 37.5 X 112.5
Square Feet
1876
Topo
LEVEL
Utility
ALL PUBLIC
Zoning
Please contact your municipal zoning officer
Deed Book
2024
Deed Page
008798
2026 Tax Values
Land Value / Taxable
5,900 / 5,900.00
Building Value / Taxable
32,900 / 32,900.00
Total Value / Taxable
38,800 / 38,800.00
Clean & Green
Inactive
Homestead Status
Inactive
Farmstead Status
Inactive
Lerta Amount
0.00
Lerta Expiration Year
2017
Residential Data
Card 1
Style
OLD STYLE
Basement
FULL
Year Built
1903
Exterior Wall
ALUMINUM/VINYL
Total Living Area
1876
Full Baths
2
Half Baths
0
Fuel Type
GAS
Heating
CENTRAL
Heating System
FORCED AIR
Stories
2.0
Total Bedrooms
4
Total Family Rooms
0
Total Rooms
9
Fireplaces
0
Other Buildings & Yards
Description
Built
Width
Length
Area
FRAME OR CB DETACHED GARAGE
1950
12
18
216
Sales History
Sale Date
Type
Price
Book / Page
Other Info
6/11/2024
LAND & BUILDING
0
2024 / 008798
QUIT CLAIM DEED
8/28/2001
0
0804 / 1399
5/1/1989
28000
0084 / 1633
2/23/1979
0
1339 / 0509
12/21/1977
0
1291 / 0199
2/21/1977
8000
1291 / 0197
10/14/1949
0
0549 / 0403
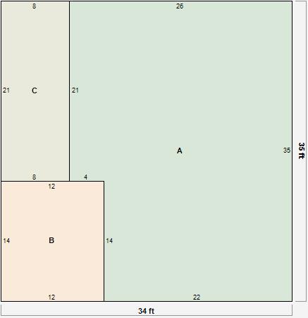
Parcel Sketches
Residential Card 1
A
MAIN
854 square feet
B
1S FR ONE STORY FRAME
168 square feet
C
OFP OPEN FRAME PORCH
168 square feet
Parcel Images
Please note:
this tab is for informational purposes only and may not show all delinquencies, see the Taxes tab for more accurate delinquent taxes due.