Elected Officials
Courts
Departments
Initiatives
Open Government
About
Login / Register
Home
/
Property & Tax Records
/
Property Records
/
Property & Tax Search
/
Parcel Profile
/
Print View
Search for Another Parcel
Parcel Profile
Historical Card
Sketches
Photos
Tax Map
Taxes
Print View
Print This Page
Address: 715 E 13 ST
Parcel: 15020036021500
Parcel Profile
Address
715 | E | 13 | ST
Street Status
PAVED | SIDEWALK
School District
CITY OF ERIE SCHOOL
Acreage
0.0904
Classification
R
Land Use Code
SINGLE FAMILY
Legal Description
715 E 13 ST 35 X 112.5
Square Feet
1225
Topo
LEVEL
Utility
ALL PUBLIC
Zoning
Please contact your municipal zoning officer
Deed Book
2017
Deed Page
025998
2026 Tax Values
Land Value / Taxable
5,800 / 5,800.00
Building Value / Taxable
22,800 / 22,800.00
Total Value / Taxable
28,600 / 28,600.00
Clean & Green
Inactive
Homestead Status
Inactive
Farmstead Status
Inactive
Lerta Amount
0
Lerta Expiration Year
0
Residential Data
Card 1
Style
OLD STYLE
Basement
PART
Year Built
1893
Exterior Wall
ALUMINUM/VINYL
Total Living Area
1225
Full Baths
1
Half Baths
0
Fuel Type
GAS
Heating
CENTRAL
Heating System
FORCED AIR
Stories
2.0
Total Bedrooms
4
Total Family Rooms
0
Total Rooms
7
Fireplaces
0
Other Buildings & Yards
Description
Built
Width
Length
Area
FRAME OR CB DETACHED GARAGE
1912
14
20
280
Sales History
Sale Date
Type
Price
Book / Page
Other Info
11/27/2017
LAND & BUILDING
12000
2017 / 025998
DEED
4/6/2010
LAND & BUILDING
0
2010 / 007467
DEED
2/8/2005
LAND & BUILDING
0
1209 / 1729
WARRANTY/SURVIVORSHIP DEED
2/4/2005
0
1209 / 0043
11/17/1998
0
0600 / 1071
4/12/1982
9861
1438 / 0361
1/23/1978
0
1293 / 0499
8/29/1974
14900
1127 / 0245
3/1/1972
0
1062 / 0491
1/31/1949
0
0532 / 0387
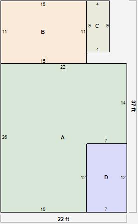
Parcel Sketches
Residential Card 1
A
MAIN
488 square feet
B
1S FR ONE STORY FRAME
165 square feet
C
EFP ENCL FRAME PORCH
36 square feet
D
OFP OPEN FRAME PORCH 1S FR ONE STORY FRAME
84 square feet
Parcel Images
Please note:
this tab is for informational purposes only and may not show all delinquencies, see the Taxes tab for more accurate delinquent taxes due.