Elected Officials
Courts
Departments
Initiatives
Open Government
About
Login / Register
Home
/
Property & Tax Records
/
Property Records
/
Property & Tax Search
/
Parcel Profile
/
Print View
Search for Another Parcel
Parcel Profile
Historical Card
Sketches
Photos
Tax Map
Taxes
Print View
Print This Page
Address: 920 E 9 ST
Parcel: 15020043022900
Parcel Profile
Address
920 | E | 9 | ST
Street Status
PAVED | SIDEWALK
School District
CITY OF ERIE SCHOOL
Acreage
0.1174
Classification
R
Land Use Code
MULTIPLE DWELLINGS
Legal Description
920 E 9 ST 33X155
Square Feet
2437
Topo
LEVEL
Utility
ALL PUBLIC
Zoning
Please contact your municipal zoning officer
Deed Book
0146
Deed Page
1375
2026 Tax Values
Land Value / Taxable
6,300 / 6,300.00
Building Value / Taxable
36,300 / 36,300.00
Total Value / Taxable
42,600 / 42,600.00
Clean & Green
Inactive
Homestead Status
Active
Farmstead Status
Inactive
Lerta Amount
0
Lerta Expiration Year
0
Residential Data
Card 1
Style
BUNGALOW
Basement
FULL
Year Built
1898
Exterior Wall
ALUMINUM/VINYL
Total Living Area
1282
Full Baths
1
Half Baths
0
Fuel Type
GAS
Heating
CENTRAL
Heating System
FORCED AIR
Stories
1.0
Total Bedrooms
4
Total Family Rooms
0
Total Rooms
7
Fireplaces
0
Card 2
Style
OLD STYLE
Basement
FULL
Year Built
1911
Exterior Wall
COMPOSITION
Total Living Area
1155
Full Baths
1
Half Baths
0
Fuel Type
GAS
Heating
CENTRAL
Heating System
FORCED AIR
Stories
1.5
Total Bedrooms
3
Total Family Rooms
0
Total Rooms
8
Fireplaces
0
Other Buildings & Yards
No OBY Data Found
Sales History
Sale Date
Type
Price
Book / Page
Other Info
12/18/1990
0
0146 / 1375
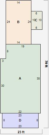
Parcel Sketches
Residential Card 1
A
MAIN
812 square feet
B
UNFIN BSMT BASEMENT UNFINISHED 1S FR ONE STORY FRAME AT FN ATTIC-FINISHED
336 square feet
C
EFP ENCL FRAME PORCH
60 square feet
D
OFP OPEN FRAME PORCH
160 square feet
Residential Card 2
A
MAIN
660 square feet
B
UNFIN BSMT BASEMENT UNFINISHED EFP ENCL FRAME PORCH
264 square feet
C
OFP OPEN FRAME PORCH
126 square feet
Parcel Images
Please note:
this tab is for informational purposes only and may not show all delinquencies, see the Taxes tab for more accurate delinquent taxes due.