Elected Officials
Courts
Departments
Initiatives
Open Government
About
Login / Register
Home
/
Property & Tax Records
/
Property Records
/
Property & Tax Search
/
Parcel Profile
/
Print View
Search for Another Parcel
Parcel Profile
Historical Card
Sketches
Photos
Tax Map
Taxes
Print View
Print This Page
Address: 934 E 12 ST
Parcel: 15020044013000
Parcel Profile
Address
934 | E | 12 | ST
Street Status
PAVED | SIDEWALK
School District
CITY OF ERIE SCHOOL
Acreage
0.1506
Classification
R
Land Use Code
TWO FAMILY
Legal Description
934 E 12 ST 41.25X159
Square Feet
2384
Topo
LEVEL
Utility
ALL PUBLIC
Zoning
Please contact your municipal zoning officer
Deed Book
0636
Deed Page
1197
2026 Tax Values
Land Value / Taxable
6,500 / 6,500.00
Building Value / Taxable
30,200 / 30,200.00
Total Value / Taxable
36,700 / 36,700.00
Clean & Green
Inactive
Homestead Status
Active
Farmstead Status
Inactive
Lerta Amount
0
Lerta Expiration Year
0
Residential Data
Card 1
Style
OLD STYLE
Basement
FULL
Year Built
1888
Exterior Wall
ALUMINUM/VINYL
Total Living Area
2384
Full Baths
2
Half Baths
0
Fuel Type
GAS
Heating
CENTRAL
Heating System
FORCED AIR
Stories
2.0
Total Bedrooms
6
Total Family Rooms
0
Total Rooms
14
Fireplaces
0
Other Buildings & Yards
Description
Built
Width
Length
Area
FRAME UTILITY SHED
1911
18
18
324
Sales History
Sale Date
Type
Price
Book / Page
Other Info
5/17/1999
0
0636 / 1197
5/14/1999
LAND & BUILDING
30000
/
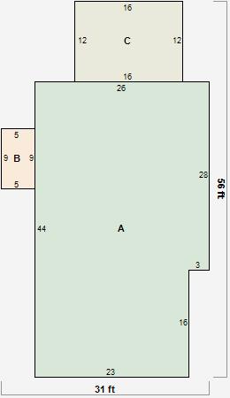
Parcel Sketches
Residential Card 1
A
MAIN
1096 square feet
B
EFP ENCL FRAME PORCH
45 square feet
C
1S FR ONE STORY FRAME
192 square feet
Parcel Images
Please note:
this tab is for informational purposes only and may not show all delinquencies, see the Taxes tab for more accurate delinquent taxes due.