Elected Officials
Courts
Departments
Initiatives
Open Government
About
Login / Register
Home
/
Property & Tax Records
/
Property Records
/
Property & Tax Search
/
Parcel Profile
/
Print View
Search for Another Parcel
Parcel Profile
Historical Card
Sketches
Photos
Tax Map
Taxes
Print View
Print This Page
Address: 1049 E 11 ST
Parcel: 15020046010800
Parcel Profile
Address
1049 | E | 11 | ST
Street Status
PAVED | SIDEWALK
School District
CITY OF ERIE SCHOOL
Acreage
0.0964
Classification
R
Land Use Code
SINGLE FAMILY
Legal Description
1049 E 11 ST 35 X 120
Square Feet
1639
Topo
LEVEL
Utility
ALL PUBLIC
Zoning
Please contact your municipal zoning officer
Deed Book
1494
Deed Page
1646
2026 Tax Values
Land Value / Taxable
5,900 / 5,900.00
Building Value / Taxable
17,500 / 17,500.00
Total Value / Taxable
23,400 / 23,400.00
Clean & Green
Inactive
Homestead Status
Inactive
Farmstead Status
Inactive
Lerta Amount
0
Lerta Expiration Year
0
Residential Data
Card 1
Style
OLD STYLE
Basement
FULL
Year Built
1895
Exterior Wall
ALUMINUM/VINYL
Total Living Area
1639
Full Baths
1
Half Baths
0
Fuel Type
GAS
Heating
CENTRAL
Heating System
FORCED AIR
Stories
1.5
Total Bedrooms
4
Total Family Rooms
0
Total Rooms
9
Fireplaces
0
Other Buildings & Yards
No OBY Data Found
Sales History
Sale Date
Type
Price
Book / Page
Other Info
5/14/2008
LAND & BUILDING
15000
1494 / 1646
WARRANTY/SURVIVORSHIP DEED
10/11/1994
0
0357 / 0997
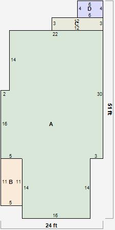
Parcel Sketches
Residential Card 1
A
MAIN
916 square feet
B
EFP ENCL FRAME PORCH
55 square feet
C
1S FR ONE STORY FRAME
36 square feet
D
EFP ENCL FRAME PORCH
24 square feet
Parcel Images
Please note:
this tab is for informational purposes only and may not show all delinquencies, see the Taxes tab for more accurate delinquent taxes due.