Elected Officials
Courts
Departments
Initiatives
Open Government
About
Login / Register
Home
/
Property & Tax Records
/
Property Records
/
Property & Tax Search
/
Parcel Profile
/
Print View
Search for Another Parcel
Parcel Profile
Historical Card
Sketches
Photos
Tax Map
Taxes
Print View
Print This Page
Address: 1039 E 11 ST
Parcel: 15020046011100
Parcel Profile
Address
1039 | E | 11 | ST
Street Status
PAVED | SIDEWALK
School District
CITY OF ERIE SCHOOL
Acreage
0.1047
Classification
R
Land Use Code
TWO FAMILY
Legal Description
1039 E 11 ST 38 X 120
Square Feet
2016
Topo
LEVEL
Utility
ALL PUBLIC
Zoning
Please contact your municipal zoning officer
Deed Book
2017
Deed Page
001636
2026 Tax Values
Land Value / Taxable
6,100 / 6,100.00
Building Value / Taxable
27,600 / 27,600.00
Total Value / Taxable
33,700 / 33,700.00
Clean & Green
Inactive
Homestead Status
Inactive
Farmstead Status
Inactive
Lerta Amount
0
Lerta Expiration Year
0
Residential Data
Card 1
Style
OLD STYLE
Basement
FULL
Year Built
1893
Exterior Wall
COMPOSITION
Total Living Area
2016
Full Baths
2
Half Baths
0
Fuel Type
GAS
Heating
CENTRAL
Heating System
FORCED AIR
Stories
2.0
Total Bedrooms
4
Total Family Rooms
0
Total Rooms
8
Fireplaces
0
Other Buildings & Yards
No OBY Data Found
Sales History
Sale Date
Type
Price
Book / Page
Other Info
1/24/2017
LAND & BUILDING
0
2017 / 001636
QUIT CLAIM DEED
3/20/2002
LAND & BUILDING
28500
863 / 791
7/23/1999
LAND & BUILDING
27000
651 / 637
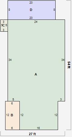
Parcel Sketches
Residential Card 1
A
MAIN
1008 square feet
B
OFP OPEN FRAME PORCH
72 square feet
C
MA STOOP/TERR MAS STOOP
15 square feet
D
EFP ENCL FRAME PORCH
160 square feet
Parcel Images
Please note:
this tab is for informational purposes only and may not show all delinquencies, see the Taxes tab for more accurate delinquent taxes due.