Elected Officials
Courts
Departments
Initiatives
Open Government
About
Login / Register
Home
/
Property & Tax Records
/
Property Records
/
Property & Tax Search
/
Parcel Profile
/
Print View
Search for Another Parcel
Parcel Profile
Historical Card
Sketches
Photos
Tax Map
Taxes
Print View
Print This Page
Address: 1024 26 E 11 ST
Parcel: 15020046023000
Parcel Profile
Address
1024 | 26 | E | 11 | ST
Street Status
PAVED | SIDEWALK
School District
CITY OF ERIE SCHOOL
Acreage
0.1515
Classification
R
Land Use Code
THREE FAMILY
Legal Description
1024 26 E 11 ST 40 X 165
Square Feet
2874
Topo
LEVEL
Utility
ALL PUBLIC
Zoning
Please contact your municipal zoning officer
Deed Book
2018
Deed Page
010792
2025 Tax Values
Land Value / Taxable
6,500 / 6,500.00
Building Value / Taxable
36,600 / 36,600.00
Total Value / Taxable
43,100 / 43,100.00
Clean & Green
Inactive
Homestead Status
Inactive
Farmstead Status
Inactive
Lerta Amount
0
Lerta Expiration Year
0
Residential Data
Card 1
Style
OLD STYLE
Basement
FULL
Year Built
1885
Exterior Wall
ALUMINUM/VINYL
Total Living Area
2874
Full Baths
3
Half Baths
0
Fuel Type
GAS
Heating
CENTRAL
Heating System
FORCED AIR
Stories
2.0
Total Bedrooms
6
Total Family Rooms
0
Total Rooms
12
Fireplaces
0
Other Buildings & Yards
No OBY Data Found
Sales History
Sale Date
Type
Price
Book / Page
Other Info
6/6/2018
LAND & BUILDING
48000
2018 / 010792
SPECIAL WARRANTY DEED
10/25/1995
0
0409 / 1481
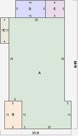
Parcel Sketches
Residential Card 1
A
MAIN
1313 square feet
B
UNFIN BSMT BASEMENT UNFINISHED EFP ENCL FRAME PORCH 1S FR ONE STORY FRAME
104 square feet
C
EFP ENCL FRAME PORCH
48 square feet
D
WDDCK WOOD DECKS
112 square feet
E
UNFIN BSMT BASEMENT UNFINISHED 1S FR ONE STORY FRAME 1S FR ONE STORY FRAME
72 square feet
Parcel Images