Elected Officials
Courts
Departments
Initiatives
Open Government
About
Login / Register
Home
/
Property & Tax Records
/
Property Records
/
Property & Tax Search
/
Parcel Profile
/
Print View
Search for Another Parcel
Parcel Profile
Historical Card
Sketches
Photos
Tax Map
Taxes
Print View
Print This Page
Address: 1007 E 11 ST
Parcel: 15020046031200
Parcel Profile
Address
1007 | E | 11 | ST
Street Status
PAVED | SIDEWALK
School District
CITY OF ERIE SCHOOL
Acreage
0.0404
Classification
R
Land Use Code
SINGLE FAMILY
Legal Description
1007 E 11 ST 44X40
Square Feet
1712
Topo
LEVEL
Utility
ALL PUBLIC
Zoning
Please contact your municipal zoning officer
Deed Book
2020
Deed Page
012119
2026 Tax Values
Land Value / Taxable
5,000 / 5,000.00
Building Value / Taxable
27,700 / 27,700.00
Total Value / Taxable
32,700 / 32,700.00
Clean & Green
Inactive
Homestead Status
Active
Farmstead Status
Inactive
Lerta Amount
0
Lerta Expiration Year
0
Residential Data
Card 1
Style
OLD STYLE
Basement
FULL
Year Built
1927
Exterior Wall
FRAME
Total Living Area
1712
Full Baths
2
Half Baths
0
Fuel Type
GAS
Heating
CENTRAL
Heating System
FORCED AIR
Stories
2.0
Total Bedrooms
3
Total Family Rooms
1
Total Rooms
8
Fireplaces
0
Other Buildings & Yards
Description
Built
Width
Length
Area
FRAME OR CB DETACHED GARAGE
1900
29
19
551
Sales History
Sale Date
Type
Price
Book / Page
Other Info
7/2/2020
LAND & BUILDING
10000
2020 / 012119
SPECIAL WARRANTY DEED
6/2/2005
LAND & BUILDING
24000
1239 / 0689
FIDUCIARY DEED
7/2/1984
0
1542 / 0216
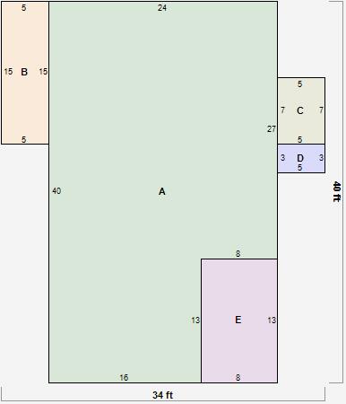
Parcel Sketches
Residential Card 1
A
MAIN
856 square feet
B
EFP ENCL FRAME PORCH
75 square feet
C
EFP ENCL FRAME PORCH
35 square feet
D
OFP OPEN FRAME PORCH
15 square feet
E
EFP ENCL FRAME PORCH
104 square feet
Parcel Images
Please note:
this tab is for informational purposes only and may not show all delinquencies, see the Taxes tab for more accurate delinquent taxes due.