Elected Officials
Courts
Departments
Initiatives
Open Government
About
Login / Register
Home
/
Property & Tax Records
/
Property Records
/
Property & Tax Search
/
Parcel Profile
/
Print View
Search for Another Parcel
Parcel Profile
Historical Card
Sketches
Photos
Tax Map
Taxes
Print View
Print This Page
Address: 1159 E 8 ST
Parcel: 15020047020100
Parcel Profile
Address
1159 | E | 8 | ST
Street Status
PAVED | SIDEWALK
School District
CITY OF ERIE SCHOOL
Acreage
0.0829
Classification
R
Land Use Code
SINGLE FAMILY
Legal Description
1159 E 8 ST 29.79X121.22
Square Feet
1098
Topo
LEVEL
Utility
ALL PUBLIC
Zoning
Please contact your municipal zoning officer
Deed Book
1415
Deed Page
0011
2026 Tax Values
Land Value / Taxable
5,700 / 5,700.00
Building Value / Taxable
18,600 / 18,600.00
Total Value / Taxable
24,300 / 24,300.00
Clean & Green
Inactive
Homestead Status
Inactive
Farmstead Status
Inactive
Lerta Amount
0
Lerta Expiration Year
0
Residential Data
Card 1
Style
BUNGALOW
Basement
FULL
Year Built
1900
Exterior Wall
COMPOSITION
Total Living Area
1098
Full Baths
1
Half Baths
0
Fuel Type
GAS
Heating
CENTRAL
Heating System
FORCED AIR
Stories
1.0
Total Bedrooms
4
Total Family Rooms
0
Total Rooms
7
Fireplaces
0
Other Buildings & Yards
No OBY Data Found
Sales History
Sale Date
Type
Price
Book / Page
Other Info
5/10/2007
LAND & BUILDING
14900
1415 / 0011
QUIT CLAIM DEED
10/30/2002
LAND & BUILDING
0
939 / 1002
TAX DEED
2/8/2002
LAND & BUILDING
3906
852 / 1237
2/8/2002
LAND & BUILDING
3906
852 / 1237
2/8/2002
LAND & BUILDING
3405
852 / 1233
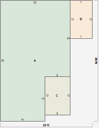
Parcel Sketches
Residential Card 1
A
MAIN
724 square feet
B
1S FR ONE STORY FRAME
84 square feet
C
OFP OPEN FRAME PORCH
96 square feet
Parcel Images
Please note:
this tab is for informational purposes only and may not show all delinquencies, see the Taxes tab for more accurate delinquent taxes due.