Elected Officials
Courts
Departments
Initiatives
Open Government
About
Login / Register
Home
/
Property & Tax Records
/
Property Records
/
Property & Tax Search
/
Parcel Profile
/
Print View
Search for Another Parcel
Parcel Profile
Historical Card
Sketches
Photos
Tax Map
Taxes
Print View
Print This Page
Address: 1110 BUFFALO RD
Parcel: 15020054011500
Parcel Profile
Address
1110 | BUFFALO | RD
Street Status
PAVED | SIDEWALK
School District
CITY OF ERIE SCHOOL
Acreage
0.0964
Classification
C
Land Use Code
GARAGES/SHOP/CAR DEALERS
Legal Description
1110 BUFFALO RD 80 X 105
Square Feet
1867
Topo
LEVEL
Utility
ALL PUBLIC
Zoning
Please contact your municipal zoning officer
Deed Book
1170
Deed Page
1891
2026 Tax Values
Land Value / Taxable
5,900 / 5,900.00
Building Value / Taxable
21,900 / 21,900.00
Total Value / Taxable
27,800 / 27,800.00
Clean & Green
Inactive
Homestead Status
Inactive
Farmstead Status
Inactive
Lerta Amount
0
Lerta Expiration Year
0
Commercial Data
Card 1
AUTO SERVICE GARAGE
Business Living Area - 1867
Year Built - 2008
Improvement Name - GARY'S AUTO SERVICE
Value - 31660
Other Buildings & Yards
No OBY Data Found
Sales History
Sale Date
Type
Price
Book / Page
Other Info
9/3/2004
LAND & BUILDING
32000
1170 / 1891
FIDUCIARY DEED
10/7/1988
0
0066 / 2006
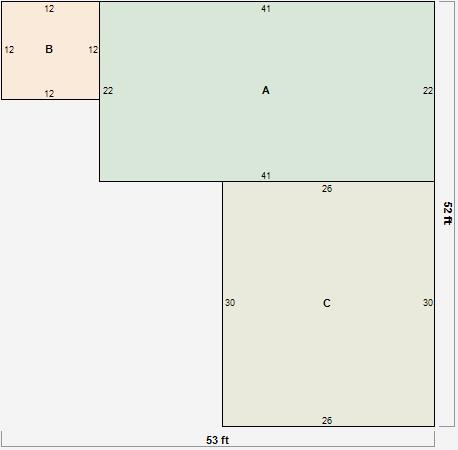
Parcel Sketches
Commercial Card 1
A
MAIN
943 square feet
B
MAIN
144 square feet
C
MAIN
780 square feet
Parcel Images
No images found for this parcel.
Please note:
this tab is for informational purposes only and may not show all delinquencies, see the Taxes tab for more accurate delinquent taxes due.