Elected Officials
Courts
Departments
Initiatives
Open Government
About
Login / Register
Home
/
Property & Tax Records
/
Property Records
/
Property & Tax Search
/
Parcel Profile
/
Print View
Search for Another Parcel
Parcel Profile
Historical Card
Sketches
Photos
Tax Map
Taxes
Print View
Print This Page
Address: 1146 E 20 ST
Parcel: 15020054024100
Parcel Profile
Address
1146 | E | 20 | ST
Street Status
PAVED | SIDEWALK
School District
CITY OF ERIE SCHOOL
Acreage
0.0723
Classification
R
Land Use Code
SINGLE FAMILY
Legal Description
1146 E 20 ST 30X105
Square Feet
1392
Topo
LEVEL
Utility
ALL PUBLIC
Zoning
Please contact your municipal zoning officer
Deed Book
2013
Deed Page
002508
2026 Tax Values
Land Value / Taxable
5,500 / 5,500.00
Building Value / Taxable
36,900 / 34,308.00
Total Value / Taxable
42,400 / 39,808.00
Clean & Green
Inactive
Homestead Status
Inactive
Farmstead Status
Inactive
Lerta Amount
2592.00
Lerta Expiration Year
2028
Residential Data
Card 1
Style
OLD STYLE
Basement
FULL
Year Built
1916
Exterior Wall
ALUMINUM/VINYL
Total Living Area
1392
Full Baths
1
Half Baths
0
Fuel Type
GAS
Heating
CENTRAL
Heating System
FORCED AIR
Stories
2.0
Total Bedrooms
3
Total Family Rooms
0
Total Rooms
6
Fireplaces
0
Other Buildings & Yards
Description
Built
Width
Length
Area
METAL SHED
2018
11
21
231
Sales History
Sale Date
Type
Price
Book / Page
Other Info
2/1/2013
LAND & BUILDING
3302
2013 / 002508
TAX DEED
9/30/1947
0
0488 / 0245
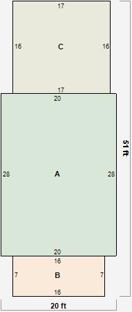
Parcel Sketches
Residential Card 1
A
MAIN
560 square feet
B
EFP ENCL FRAME PORCH EFP ENCL FRAME PORCH
112 square feet
C
1S FR ONE STORY FRAME
272 square feet
Parcel Images
Please note:
this tab is for informational purposes only and may not show all delinquencies, see the Taxes tab for more accurate delinquent taxes due.