Elected Officials
Courts
Departments
Initiatives
Open Government
About
Login / Register
Home
/
Property & Tax Records
/
Property Records
/
Property & Tax Search
/
Parcel Profile
/
Print View
Search for Another Parcel
Parcel Profile
Historical Card
Sketches
Photos
Tax Map
Taxes
Print View
Print This Page
Address: 1327 E 8 ST
Parcel: 15021001021200
Parcel Profile
Address
1327 | E | 8 | ST
Street Status
PAVED | SIDEWALK
School District
CITY OF ERIE SCHOOL
Acreage
0.1102
Classification
R
Land Use Code
SINGLE FAMILY
Legal Description
1327 E 8 ST 40 X 120
Square Feet
1716
Topo
LEVEL
Utility
ALL PUBLIC
Zoning
Please contact your municipal zoning officer
Deed Book
0052
Deed Page
0528
2026 Tax Values
Land Value / Taxable
6,200 / 6,200.00
Building Value / Taxable
35,690 / 35,690.00
Total Value / Taxable
41,890 / 41,890.00
Clean & Green
Inactive
Homestead Status
Inactive
Farmstead Status
Inactive
Lerta Amount
0
Lerta Expiration Year
0
Residential Data
Card 1
Style
OLD STYLE
Basement
FULL
Year Built
1898
Exterior Wall
FRAME
Total Living Area
1716
Full Baths
1
Half Baths
1
Fuel Type
GAS
Heating
CENTRAL
Heating System
FORCED AIR
Stories
2.0
Total Bedrooms
3
Total Family Rooms
0
Total Rooms
6
Fireplaces
0
Other Buildings & Yards
Description
Built
Width
Length
Area
FRAME OR CB DETACHED GARAGE
1926
14
22
308
Sales History
Sale Date
Type
Price
Book / Page
Other Info
6/1/1988
0
0052 / 0528
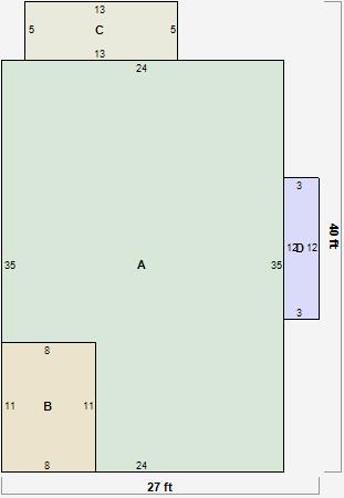
Parcel Sketches
Residential Card 1
A
MAIN
840 square feet
B
EFP ENCL FRAME PORCH
88 square feet
C
EFP ENCL FRAME PORCH
65 square feet
D
FRBAY FRAME BAY
36 square feet
Parcel Images
Please note:
this tab is for informational purposes only and may not show all delinquencies, see the Taxes tab for more accurate delinquent taxes due.