Elected Officials
Courts
Departments
Initiatives
Open Government
About
Login / Register
Home
/
Property & Tax Records
/
Property Records
/
Property & Tax Search
/
Parcel Profile
/
Print View
Search for Another Parcel
Parcel Profile
Historical Card
Sketches
Photos
Tax Map
Taxes
Print View
Print This Page
Address: 2004 WHITLEY AVE
Parcel: 15021007010200
Parcel Profile
Address
2004 | WHITLEY | AVE
Street Status
PAVED | SIDEWALK
School District
CITY OF ERIE SCHOOL
Acreage
0.0715
Classification
R
Land Use Code
SINGLE FAMILY
Legal Description
2004 WHITLEY AVE 35 X 89
Square Feet
1304
Topo
LEVEL
Utility
ALL PUBLIC
Zoning
Please contact your municipal zoning officer
Deed Book
1502
Deed Page
1963
2025 Tax Values
Land Value / Taxable
5,500 / 5,500.00
Building Value / Taxable
18,500 / 18,500.00
Total Value / Taxable
24,000 / 24,000.00
Clean & Green
Inactive
Homestead Status
Inactive
Farmstead Status
Inactive
Lerta Amount
0
Lerta Expiration Year
0
Residential Data
Card 1
Style
OLD STYLE
Basement
FULL
Year Built
1908
Exterior Wall
ALUMINUM/VINYL
Total Living Area
1304
Full Baths
1
Half Baths
0
Fuel Type
GAS
Heating
CENTRAL
Heating System
FORCED AIR
Stories
2.0
Total Bedrooms
3
Total Family Rooms
0
Total Rooms
6
Fireplaces
0
Other Buildings & Yards
No OBY Data Found
Sales History
Sale Date
Type
Price
Book / Page
Other Info
6/19/2008
LAND & BUILDING
0
1502 / 1963
QUIT CLAIM DEED
11/30/2004
LAND & BUILDING
10000
1193 / 1049
WARRANTY/SURVIVORSHIP DEED
4/17/1996
0
0434 / 0851
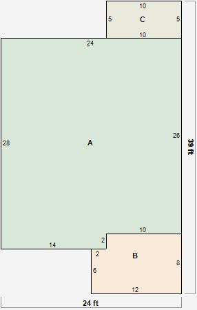
Parcel Sketches
Residential Card 1
A
MAIN
652 square feet
B
OFP OPEN FRAME PORCH
92 square feet
C
EFP ENCL FRAME PORCH
50 square feet
Parcel Images