Elected Officials
Courts
Departments
Initiatives
Open Government
About
Login / Register
Home
/
Property & Tax Records
/
Property Records
/
Property & Tax Search
/
Parcel Profile
/
Print View
Search for Another Parcel
Parcel Profile
Historical Card
Sketches
Photos
Tax Map
Taxes
Print View
Print This Page
Address: 1334 BUFFALO RD
Parcel: 15021007012600
Parcel Profile
Address
1334 | BUFFALO | RD
Street Status
PAVED | SIDEWALK
School District
CITY OF ERIE SCHOOL
Acreage
0.0964
Classification
R
Land Use Code
SINGLE FAMILY
Legal Description
1334 BUFFALO RD 40 X 105
Square Feet
1587
Topo
LEVEL
Utility
ALL PUBLIC
Zoning
Please contact your municipal zoning officer
Deed Book
0252
Deed Page
2014
2026 Tax Values
Land Value / Taxable
5,900 / 5,900.00
Building Value / Taxable
29,430 / 29,430.00
Total Value / Taxable
35,330 / 35,330.00
Clean & Green
Inactive
Homestead Status
Active
Farmstead Status
Inactive
Lerta Amount
0
Lerta Expiration Year
0
Residential Data
Card 1
Style
OLD STYLE
Basement
FULL
Year Built
1900
Exterior Wall
COMPOSITION
Total Living Area
1587
Full Baths
1
Half Baths
0
Fuel Type
GAS
Heating
CENTRAL
Heating System
FORCED AIR
Stories
2.0
Total Bedrooms
4
Total Family Rooms
0
Total Rooms
8
Fireplaces
0
Other Buildings & Yards
Description
Built
Width
Length
Area
FRAME OR CB DETACHED GARAGE
1900
16
20
320
Sales History
Sale Date
Type
Price
Book / Page
Other Info
2/3/1993
0
0252 / 2014
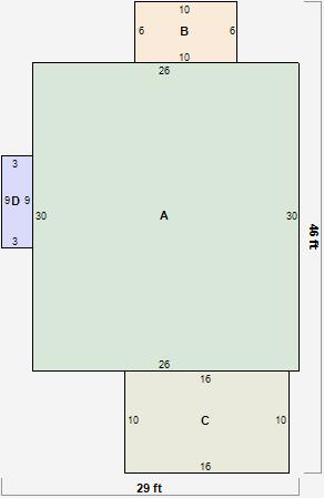
Parcel Sketches
Residential Card 1
A
MAIN
780 square feet
B
EFP ENCL FRAME PORCH
60 square feet
C
EFP ENCL FRAME PORCH
160 square feet
D
FROVR FRAME OVERHANG
27 square feet
Parcel Images
Please note:
this tab is for informational purposes only and may not show all delinquencies, see the Taxes tab for more accurate delinquent taxes due.