Elected Officials
Courts
Departments
Initiatives
Open Government
About
Login / Register
Home
/
Property & Tax Records
/
Property Records
/
Property & Tax Search
/
Parcel Profile
/
Print View
Search for Another Parcel
Parcel Profile
Historical Card
Sketches
Photos
Tax Map
Taxes
Print View
Print This Page
Address: 1356 BUFFALO RD
Parcel: 15021007013100
Parcel Profile
Address
1356 | BUFFALO | RD
Street Status
PAVED | SIDEWALK
School District
CITY OF ERIE SCHOOL
Acreage
0.0964
Classification
R
Land Use Code
TWO FAMILY
Legal Description
1356 BUFFALO RD 40 X 105
Square Feet
1644
Topo
LEVEL
Utility
ALL PUBLIC
Zoning
Please contact your municipal zoning officer
Deed Book
2013
Deed Page
024707
2026 Tax Values
Land Value / Taxable
5,900 / 5,900.00
Building Value / Taxable
21,540 / 21,540.00
Total Value / Taxable
27,440 / 27,440.00
Clean & Green
Inactive
Homestead Status
Inactive
Farmstead Status
Inactive
Lerta Amount
0
Lerta Expiration Year
0
Residential Data
Card 1
Style
OLD STYLE
Basement
FULL
Year Built
1908
Exterior Wall
FRAME
Total Living Area
1644
Full Baths
2
Half Baths
0
Fuel Type
GAS
Heating
CENTRAL
Heating System
FORCED AIR
Stories
2.0
Total Bedrooms
6
Total Family Rooms
0
Total Rooms
10
Fireplaces
0
Other Buildings & Yards
No OBY Data Found
Sales History
Sale Date
Type
Price
Book / Page
Other Info
9/16/2013
LAND & BUILDING
2000
2013 / 024707
QUIT CLAIM DEED
3/22/2013
LAND & BUILDING
0
2012 / 006650
QUIT CLAIM DEED
3/19/1993
0
0256 / 1797
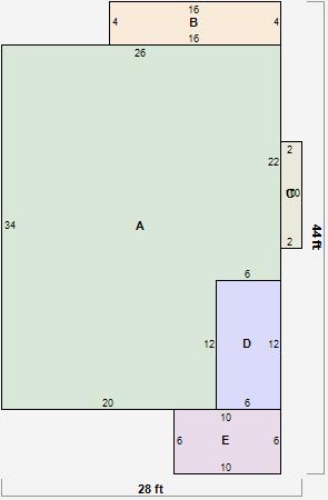
Parcel Sketches
Residential Card 1
A
MAIN
812 square feet
B
EFP ENCL FRAME PORCH
64 square feet
C
FROVR FRAME OVERHANG
20 square feet
D
EFP ENCL FRAME PORCH
72 square feet
E
MA STOOP/TERR MAS STOOP
60 square feet
Parcel Images
Please note:
this tab is for informational purposes only and may not show all delinquencies, see the Taxes tab for more accurate delinquent taxes due.