Elected Officials
Courts
Departments
Initiatives
Open Government
About
Login / Register
Home
/
Property & Tax Records
/
Property Records
/
Property & Tax Search
/
Parcel Profile
/
Print View
Search for Another Parcel
Parcel Profile
Historical Card
Sketches
Photos
Tax Map
Taxes
Print View
Print This Page
Address: 1306 E 20 ST
Parcel: 15021007021800
Parcel Profile
Address
1306 | E | 20 | ST
Street Status
PAVED | SIDEWALK
School District
CITY OF ERIE SCHOOL
Acreage
0.0857
Classification
R
Land Use Code
SINGLE FAMILY
Legal Description
1306 E 20 ST 41.5X90
Square Feet
1053
Topo
LEVEL
Utility
ALL PUBLIC
Zoning
Please contact your municipal zoning officer
Deed Book
1134
Deed Page
0179
2026 Tax Values
Land Value / Taxable
5,700 / 5,700.00
Building Value / Taxable
21,600 / 21,600.00
Total Value / Taxable
27,300 / 27,300.00
Clean & Green
Inactive
Homestead Status
Active
Farmstead Status
Inactive
Lerta Amount
0
Lerta Expiration Year
0
Residential Data
Card 1
Style
BUNGALOW
Basement
FULL
Year Built
1918
Exterior Wall
ALUMINUM/VINYL
Total Living Area
1053
Full Baths
1
Half Baths
0
Fuel Type
GAS
Heating
CENTRAL
Heating System
FORCED AIR
Stories
1.0
Total Bedrooms
3
Total Family Rooms
0
Total Rooms
6
Fireplaces
0
Other Buildings & Yards
No OBY Data Found
Sales History
Sale Date
Type
Price
Book / Page
Other Info
12/24/1974
0
1134 / 0179
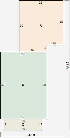
Parcel Sketches
Residential Card 1
A
MAIN
1053 square feet
B
FR GR FRAME GARAGE
740 square feet
C
OFP OPEN FRAME PORCH
161 square feet
Parcel Images