Elected Officials
Courts
Departments
Initiatives
Open Government
About
Login / Register
Home
/
Property & Tax Records
/
Property Records
/
Property & Tax Search
/
Parcel Profile
/
Print View
Search for Another Parcel
Parcel Profile
Historical Card
Sketches
Photos
Tax Map
Taxes
Print View
Print This Page
Address: 2002 CAMPHAUSEN AVE
Parcel: 15021008010300
Parcel Profile
Address
2002 | CAMPHAUSEN | AVE
Street Status
PAVED | SIDEWALK
School District
CITY OF ERIE SCHOOL
Acreage
0.0954
Classification
R
Land Use Code
SINGLE FAMILY
Legal Description
2002 CAMPHAUSEN AVE IRRX115.25
Square Feet
1508
Topo
LEVEL
Utility
ALL PUBLIC
Zoning
Please contact your municipal zoning officer
Deed Book
2012
Deed Page
002952
2025 Tax Values
Land Value / Taxable
5,900 / 5,900.00
Building Value / Taxable
18,800 / 18,800.00
Total Value / Taxable
24,700 / 24,700.00
Clean & Green
Inactive
Homestead Status
Active
Farmstead Status
Inactive
Lerta Amount
0
Lerta Expiration Year
0
Residential Data
Card 1
Style
OLD STYLE
Basement
FULL
Year Built
1893
Exterior Wall
COMPOSITION
Total Living Area
1508
Full Baths
1
Half Baths
1
Fuel Type
GAS
Heating
CENTRAL
Heating System
FORCED AIR
Stories
2.0
Total Bedrooms
4
Total Family Rooms
0
Total Rooms
7
Fireplaces
0
Other Buildings & Yards
Description
Built
Width
Length
Area
METAL SHED
1970
10
10
100
Sales History
Sale Date
Type
Price
Book / Page
Other Info
2/2/2012
LAND & BUILDING
7500
2012 / 002952
DEED
4/21/2003
LAND & BUILDING
14000
1000 / 2349
AFFIDAVIT
4/21/2003
LAND & BUILDING
0
1000 / 2345
AFFIDAVIT
10/5/1995
0
0406 / 1979
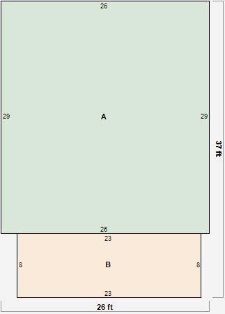
Parcel Sketches
Residential Card 1
A
MAIN
754 square feet
B
OFP OPEN FRAME PORCH
184 square feet
Parcel Images